• Sledovat cenu
  •  

Zasílání upozornění emailem:

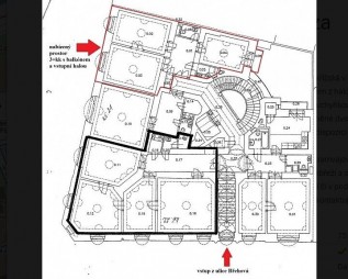
Pronájem nebytových prostor 73 m2 - Břehová, Praha 1, Josefov, Praha (již není v nabídce)

Cena: 30 000 Kč/měsíc
Stav:archiv
73 m2, cihlová
Popis: Nabízíme k pronájmu kancelářské prostory ve zvýšeném přízemí cihlového domu. celková výměra je 73m2. Jedná se o tři průchozí místnosti s kuchyňkou a toaletou. Jde o velice dobře dostupnou lokalitu v centru města.... K této dispozici náleží i vlastní balkón do vnitrobloku. Možnost venkovního posezení je i na zadním dvorku. Pro bližší informace kontaktujte makléře.

Podobné nabídky v okolí

Lokalita: Břehová , Praha 1, Josefov, Praha, Česká republika Břehová, Praha 1, Josefov, Praha