Pronájem nebytových prostor 57 m2 - Města Mayen, Uherské Hradiště (již není v nabídce)
Cena:
13 348 Kč/měsíc
Stav:archiv
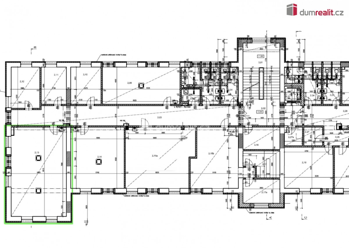
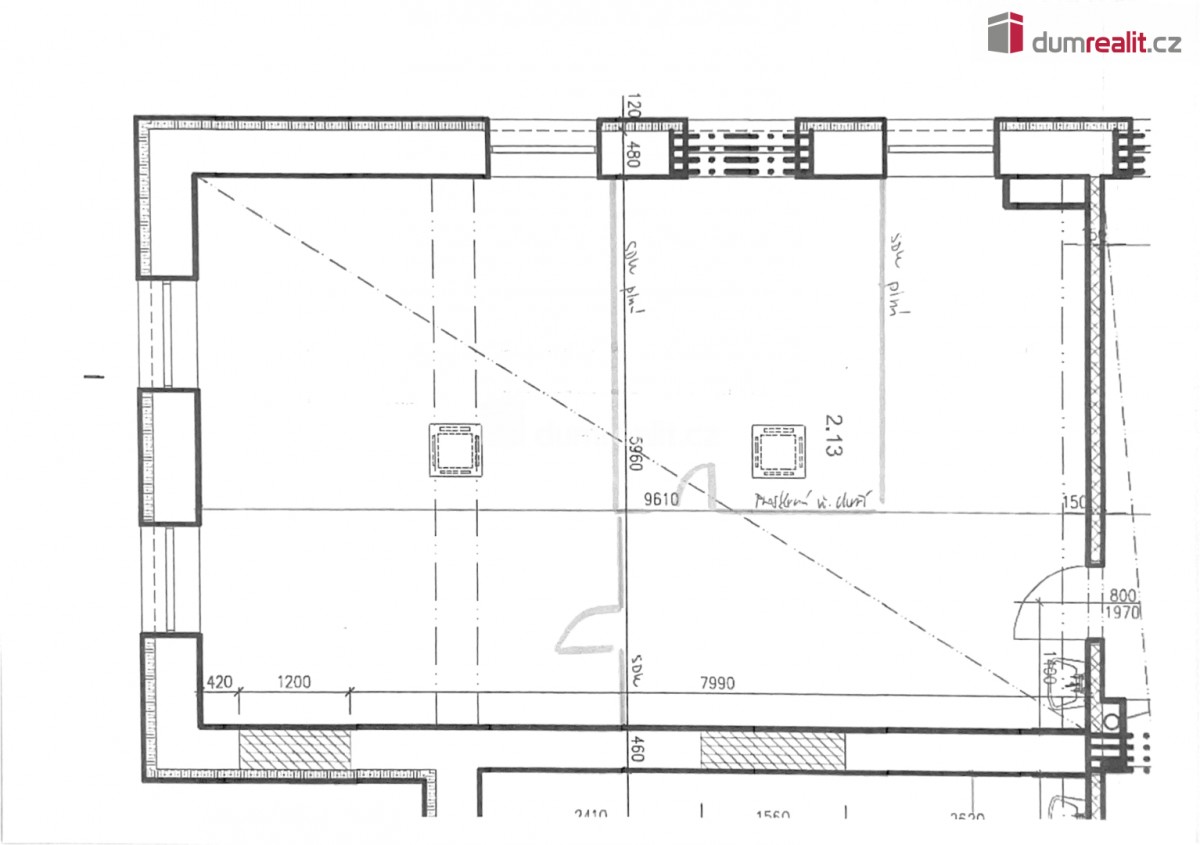
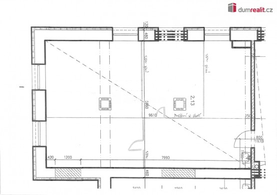
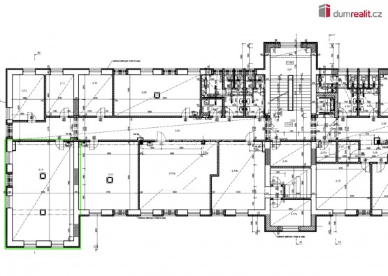
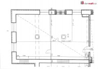
57 m2, cihlová
Popis:
Cena je uvedena bez DPH a energií a služeb. . Dumrealit. cz Vám nabízí pronájem moderních kanceláří v Uherském Hradišti na ul. Mayen, lokalita Kasárna.
Samostatné kanceláře mají celkovou výměru 57 m², disponují vlastní ...kuchyňkou a společným sociálním zázemím na chodbě. Kanceláře jsou vybaveny klimatizací a vnitřními žaluziemi. Mohou zůstat i zařízené.
Velké bezplatné parkoviště je vzdálené pouhých 50 metrů od budovy, zároveň je možné si pronajmout vyhrazené parkovací místo přímo u budovy. Celý objekt je bezbariérový a v přízemí se nachází recepce s asistentkou.
Cena nájmu za kancelář 57 m² činí 13 348 Kč/měsíc bez DPH + služby a energie 4 007 Kč/měsíc bez DPH.
Doporučujeme osobní prohlídku! Ev. číslo: 650669. Energetický štítek: C (121 kWh/m2/rok).
- Vložení inzerátu:
31.3.2025
- Kód:
3968644
- Typ nemovitosti:
Kancelář
- Typ budovy:
Cihlová
- Podlahová plocha:
57 m2
- Stav objektu:
Velmi dobrý
- Energetická náročnost:
C - Úsporná
- Ukazatel náročnosti:
121 kWh/m2
- Nabídky v okolí:
- Informace o obci:
Obec Uherské Hradiště má 25393 obyvatel, z toho 17850 v produktivním věku.
V obci se nachází pošta.
V obci se nachází škola, popř. školka.
V obci se nachází zdravotní zařízení.
V obci je rozvod kanalizace.
V obci je rozvod městské vody.
V obci je rozvod plynu.
Lokalita:
Města Mayen , Uherské Hradiště, okres Uherské Hradiště, Česká republika
Města Mayen, Uherské Hradiště