• Sledovat cenu
  •  

Zasílání upozornění emailem:

Pronájem nebytových prostor 55 m2 - Břehová, Praha 1, Praha

Cena: 60 000 Kč/měsíc
Stav:Volný
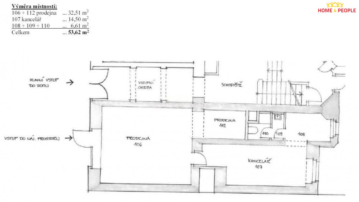
55 m2, cihlová
Popis: nově zrekonstruované prostory se přenechávají za poloviční investované náklady, tj. ve výši 700 tis. . Zprostředkujeme Vám pronájem nově zrekonstruovaných komerčních prostor o velikosti 55 m² v jedné z nejprestižnějších l...okalit centra Prahy: ulice Břehová, jen několik kroků od Pařížské ulice, Praha 1 - Josefov.

Prostor byl kompletně a velice pečlivě zrekonstruován s cílem vytvořit reprezentativní místo pro práci i klienty. Nakonec došlo ke změně podnikatelských plánů, a proto je nyní možnost převzít již hotový prostor bez starostí, čekání a dalších stavebních investic, pouze s kompenzací části nákladů na rekonstrukce.

Plocha 55 m² – praktická dispozice, kterou tvoří:
• větší vstupní místnost (recepce / open space)
• samostatný kancelářský prostor vzadu
• druhá místnost (pracovna / zasedačka / sklad)
• kuchyňka
• toaleta

Vše je úplně nové, připravené k okamžitému využití.
Odstupné: 700 000 Kč (částka k jednání)
Nájemné: 60 000 Kč / měsíc
Kauce: 2× nájem

Rekonstrukce vyšla původního nájemce na více než 50 000 €, takže nový nájemce získá hotové moderní prostory v prémiové kvalitě, bez nutnosti řešit stavební práce.

Prostory se hodí například pro využití jako:
✔ kancelář
✔ showroom
✔ studio / beauty služby
✔ konzultační nebo klientské centrum
✔ designovou provozovnu / obchodní prostor

Prestižní adresa v atraktivní lokalitě – centru Prahy se skvělou dostupností (množství parkovacích míst v okolí, 500 m se nachází stanice metra - Staroměstská).

Pro více informací kontaktujte prosím realitní makléřku – ráda Vám zodpovím dotazy nebo domluvím prohlídku. Tuto nemovitost doporučuji! Ev. číslo: 32110. Energetický štítek: G
Lokalita: Břehová , Praha 1, Praha, Česká republika Břehová, Praha 1, Praha

Kontakt

Ing. Jana Gjašiková


Podobné nabídky v okolí


Volná pracovní místa ExpertPrace.cz
  • Objednání prohlídky a více informací
  •  
  • Poslat na e-mail
  •  

Zasílání odkazu na realitu emailem: