Pronájem nebytových prostor 47 m2 - Masarykovo náměstí, Brandýs nad Labem-Stará Boleslav, okr. Praha-východ (již není v nabídce)
Cena:
15 500 Kč/měsíc
Stav:archiv
47 m2, montovaná
Popis:
Poplatky za služby 3000, - Kč/ měsíc. . K pronájmu v novostavbě komerčního areálu kancelář 2+KK o velikosti cca 47, 7 m² v Brandýs nad Labem - Praha východ.
Kancelář je zcela nová s ústředním topením, s klimatizací, n...ovou kuchyňskou linkou, s lednicí, mikrovlnou troubou a se sporákem.
Poplatky za služby 3000, - Kč/ měsíc.
Na začátku platíte 3 krát celkovou měsíční platbu. (Nájem včetně služeb, vratná jistota a provize RK)
Vše již k dispozici, tak neváhejte a domluvte si prohlídku.
- Možnost pronájmu i dalších prostor viz níže
- V každém skladovacím prostoru je přivedena elektřina 380/230V, voda, kanalizace, teplovodní sahary a příprava na vestavbu kanceláře.
- každá kancelář a prodejna má vlastní toalety
- výška vrat do skladu 4, 2 m
- cca 10 - 15 parkovacích míst v areálu, cena parkování je individuální dle pronajatých prostor
- možné zatížení ve skladech a na prodejně je 5t/ m²
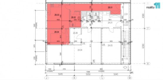
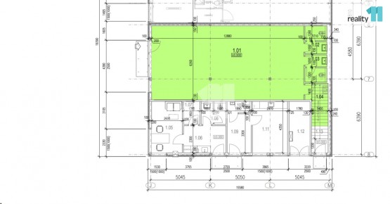
Dispozice:
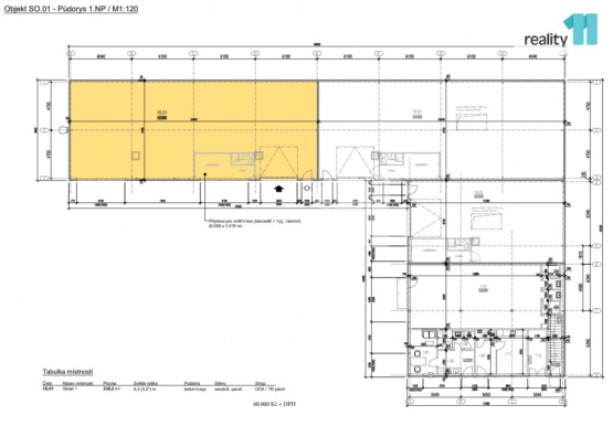
- 1NP (první nadzemní patro) Sklad č. 1, 238, 2 m², výška stropu 6, 2 m
- 1NP (první nadzemní patro) Sklad č. 2, 236, 1 m², výška stropu 6, 2 m
- 1NP (první nadzemní patro) Sklad č. 3, 124, 6 m², výška stropu 6, 2 m
- 1NP (první nadzemní patro) Prodejna 95, 1 m², výška stropu 2, 7 m
- 1NP (první nadzemní patro) Kancelář č. 1, 21, 5 m², výška stropu 2, 7 m
- 2NP (druhé nadzemní patro) Kancelář č. 2, 88, 1 m², výška stropu 2, 7 m
- 2NP (druhé nadzemní patro) Kancelář č. 3, / Byt s vlastní koupelnou 47, 7 m², výška stropu 2, 6 m Ev. číslo: 26133. Energetický štítek: C (154 kWh/m2/rok).
- Vložení inzerátu:
8.2.2024
- Kód:
3748378
- Typ nemovitosti:
Kancelář
- Typ budovy:
Montovaná
- Podlahová plocha:
47 m2
- Stav objektu:
Novostavba
- Zařízený:
Ano
- Energetická náročnost:
C - Úsporná
- Ukazatel náročnosti:
154 kWh/m2
- Nabídky v okolí: