• Sledovat cenu
  •  

Zasílání upozornění emailem:

Pronájem nebytových prostor 369 m2 - Ve Střešovičkách, Praha 6, Střešovice, Praha (již není v nabídce)

Cena: 94 500 Kč/měsíc
Stav:archiv
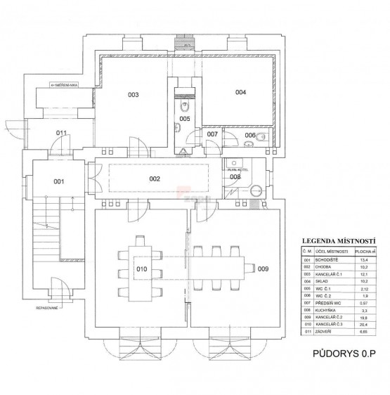
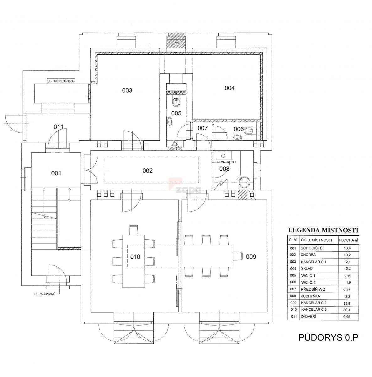
369 m2, cihlová, parcela 300 m2
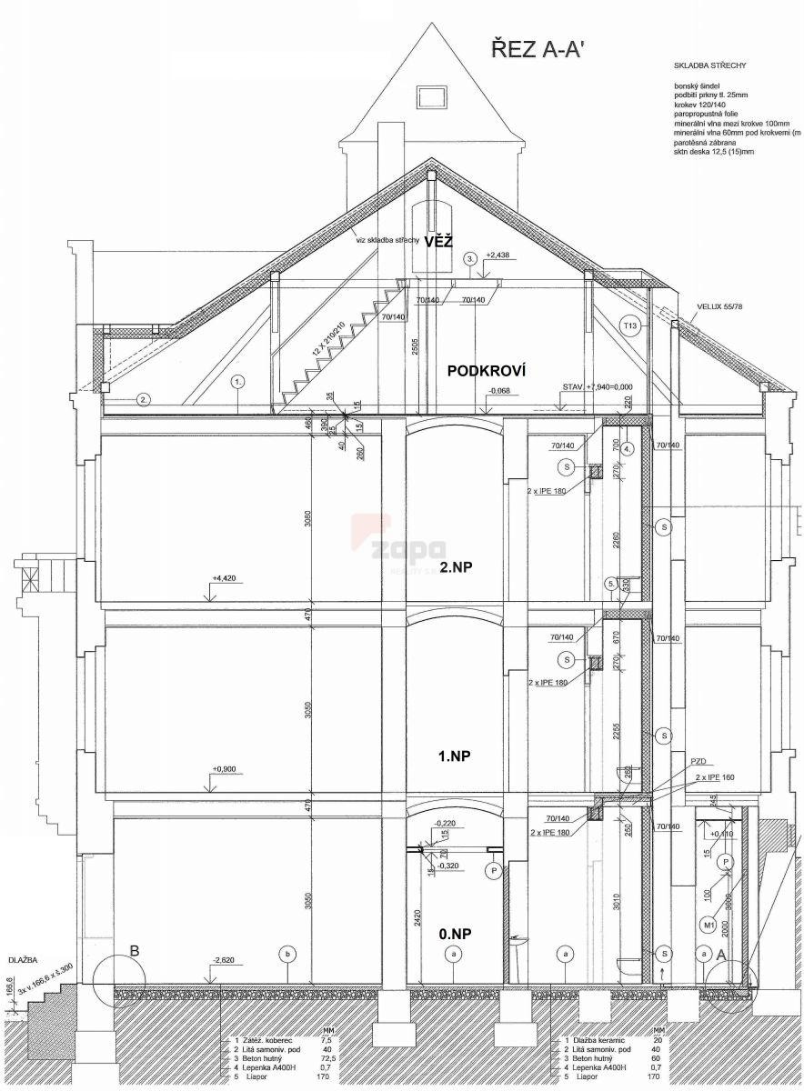
Popis: Exkluzivně nabízíme pronájem celé budovy v blízkosti parku Kajetánka, Praha 6 Střešovice, ulice Ve Střešovičkách, k dispozici jsou tři podlaží (11 místností o výměře celkem 259m2) + podkrovní atelier 110m2<.../sup>, v přízemí jsou dvě jednací místnosti/kanceláře, kuchyňka, 2 krát sociální zařízení WC, kancelář (recepce) a sklad, celkem 80m2 + terasa na zahradě, v 1. patře jsou 4 místnosti, kuch. kout, koupelna a sociální zařízení WC, celkem 85m2, ve 2. patře je 5 místností, kuch. kout, koupelna a sociální zařízení WC, celkem 94m2, podkroví lze využít jako atelier, kancelář nebo pracovnu s kuch. koutem, koupelnou s sociální zařízení WC, skladem + výškově oddělená místnost ve věžičce, která je vhodná k přespání, celkem cca 110m2. Prostory jsou částečně zařízeny nábytkem (lze vyklidit), prostory v 1. a 2. patře je možné využít i k bydlení, případně si pronajmou pouze část domu - minimálně však celé patro, které je vždy pod samostatným uzavřením, na adresu je možné po dohodě umístit sídlo firmy. Stav celého domu a prostor je velice dobrý, nová ALU okna Vekra, topení etážové, plynové, po dohodě případně možnost parkování pro vozidlo na pozemku, internetové připojení, alarm. Velmi dobrá dopravní dostupnost na letiště. Majitel je plátce DPH, v případě dlouhodobého nájmu je nabízena možnost snižování nájemného až na 90. 000, - Kč měsíčně + poplatky (vodné, stočné, el. a plyn, odvoz odpadu). Dům je k dispozici od 1. 3. 2020, prohlídky jsou možné okamžitě, kauce 2 krát nájem, bez provize.

Podobné nabídky v okolí

Lokalita: Ve Střešovičkách , Praha 6, Střešovice, Praha, Česká republika Ve Střešovičkách, Praha 6, Střešovice, Praha