• Sledovat cenu
  •  

Zasílání upozornění emailem:

Pronájem nebytových prostor 36 m2 - Palackého 75, Olomouc (již není v nabídce)

Cena: 9 000 Kč/měsíc
Stav:archiv
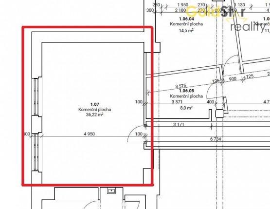
36 m2, cihlová
Popis: Pronájem kanceláře v moderní multifunkční budově DŮM U PARKU, ulice Palackého, Olomouc. Jedná se o kancelář v přízemí budovy o výměře 36, 22m2. Kancelář má rozměry 4, 95 šířka x 7, 32 délka. K dispozici kuchyň...ka a sociální zařízení WC na identickém podlaží. Kanceláře je možné přenechat po současném nájemníkovi včetně vybavení (skříní, stolů, atd).

Kanceláře se nachází na atraktivním místě vedle parku Čechovy sady a poblíž historického centra města. Ideální jako reprezentativní adresa pro sídlo firmy. Požadovaná peněžní jistota ve výši 8. 000, - Kč. Platba za nájem je uvedena bez DPH. Cena za služby zahrnuje, mimo další platby, již internetové připojeníové připojení, úklid předmětu nájmu + společných prostor, servis, údržba, ostraha budovy, ručníky, mýdlo, papíry.

Možnost parkovacího stání v uzavřeném dvorním traktu za částku 1. 000, - Kč bez DPH / měsíc. Prostory jsou volné k užívání od 1. 4. 2022. PENB prozatím nedoložen – energetická třída G. Služby realitní kanceláře pro zájemce zdarma. Doporučujeme Vám prohlídku. Náš tip!
  • Vložení inzerátu:
    8.2.2022
  • Kód:
    00835
  • K dispozici od:
    0.0.0
  • Typ nemovitosti:
    Kancelář
  • Typ budovy:
    Cihlová
  • Podlaží:
    1
  • Podlahová plocha:
    36 m2
  • Stav objektu:
    Po rekonstrukci
  • Umístění objektu:
    Centrum
  • Energetická náročnost:
    G - Mimořádne nehospodárná
  • Nabídky v okolí:
  • Informace o obci:
    Obec Olomouc má 100233 obyvatel, z toho 70192 v produktivním věku.
    V obci se nachází pošta.
    V obci se nachází škola, popř. školka.
    V obci se nachází zdravotní zařízení.
    V obci je rozvod kanalizace.
    V obci je rozvod městské vody.
    V obci je rozvod plynu.

Podobné nabídky v okolí

Lokalita: Palackého 75, Olomouc, okres Olomouc, Česká republika Palackého 75, Olomouc