• Sledovat cenu
  •  

Zasílání upozornění emailem:

Pronájem nebytových prostor 35 m2 - Selská, Brno, okr. Brno-město (již není v nabídce)

Cena: 6 900 Kč/měsíc
Stav:archiv
35 m2, cihlová
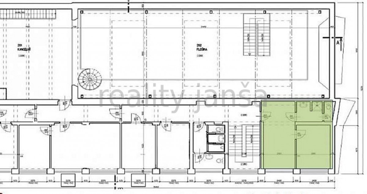
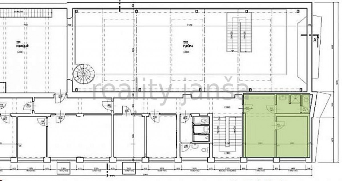
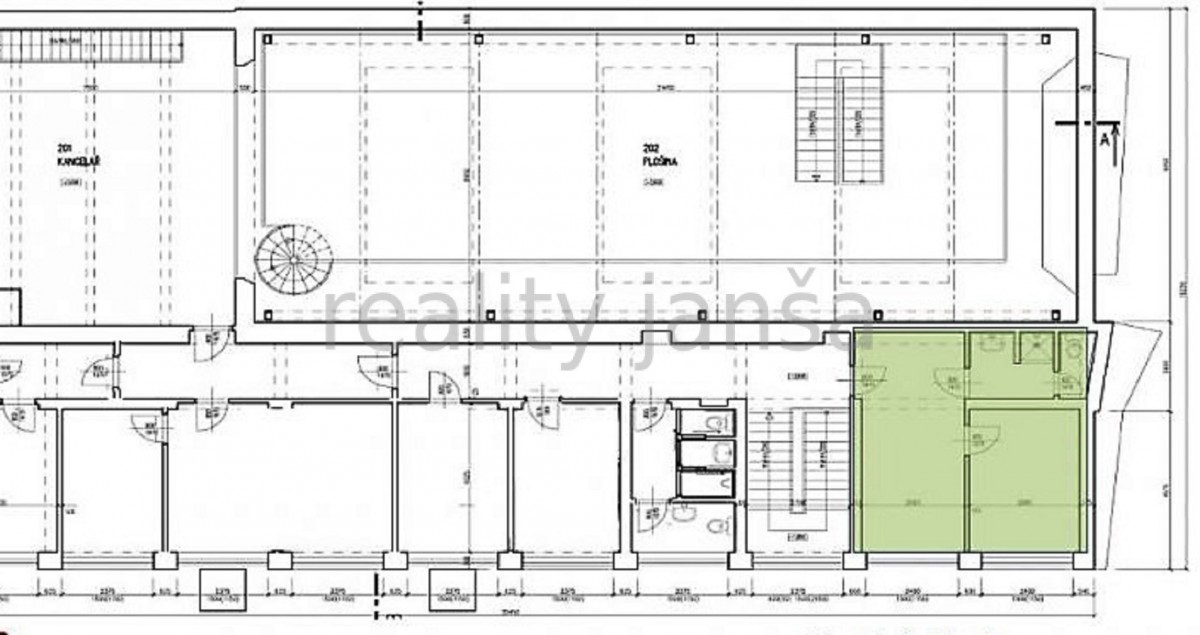
Popis: Pronájem kanceláře, ulice Selská, Brno - Maloměřice. Samostatné kancelářské prostory ve velice dobrém stavu po rekonstrukci o velikosti 35 m² jsou přístupné hlavním vchodem přímo z ulice. Součástí kanceláří je kuchyňský k...out, sociální zařízení (sprcha+sociální zařízení WC), veškeré sítě a parkování zdarma před budovou a v blízkém okolí. Kancelářské prostory se nacházející na rušné hlavní ulici Selská v centru městské části Brno - Maloměřice. Okna jsou plastové, vstupní část z ulice je tvořena hliníkovými dveřmi. Podlahu tvoří na toaletách dlažba, na chodbách lino a v kancelářích koberec. Radiátory jsou deskové. Rozvody plynu a elektřiny jsou zavedeny. UPC pro internetové připojení. Parkování je přímo před objektem. V blízkosti kancelářského prostoru se nachází radnice, restaurační zařízení, penzion, zastávka městské hromadné dopravy, mateřská a základní škola a další. Prostory lze využít mnoha způsoby např. jako kancelář pro finanční či pojišťovací poradce, realitní makléře, IT firmu, bankovní pobočku, kancelář pro projektanty či architekty a další.
  • Vložení inzerátu:
    28.2.2019
  • Kód:
    2915532
  • Typ nemovitosti:
    Kancelář
  • Typ budovy:
    Cihlová
  • Podlahová plocha:
    35 m2
  • Stav objektu:
    Novostavba
  • Umístění objektu:
    Rušná část
  • Telekomunikace:
    Telefon, Internet, Kabelové rozvody
  • Doprava:
    silnice, MHD, autobus
  • Topeni:
    lokální plynové
  • Energetická náročnost:
    G - Mimořádne nehospodárná
  • Nabídky v okolí:
  • Informace o obci:
    Obec Brno má 371371 obyvatel, z toho 256490 v produktivním věku.
    V obci se nachází pošta.
    V obci se nachází škola, popř. školka.
    V obci se nachází zdravotní zařízení.
    V obci je rozvod kanalizace.
    V obci je rozvod městské vody.
    V obci je rozvod plynu.

Podobné nabídky v okolí

Lokalita: Selská , Brno, okres Brno-město, Česká republika Selská, Brno, okr. Brno-město