• Sledovat cenu
  •  

Zasílání upozornění emailem:

Pronájem nebytových prostor 330 m2 - Tiskařská, Praha (již není v nabídce)

Cena: 55 000 Kč/měsíc
Stav:archiv
330 m2, montovaná
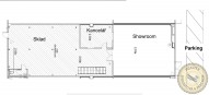
Popis: HALA 205 m² + vestavěné patro 125 m²
Nabízíme moderní, zateplenou a komfortní jednotku o celkové rozloze 205 m² s vestavěným patrem o rozloze 125 m², vhodnou pro skladování a showroom s kanceláří. Jednotka má vlastní sociá...lní zázemí a je okamžitě k dispozici.

Specifikace:
Není nákladní rampa
Moderní zateplená budova
Sociální zázemí
Energetická náročnost budovy: Třída B – velice úsporná
K dispozici ihned – ideální pro vaše podnikání! Kontaktujte nás pro více informací.

V areálu je 24h bezpečnostní ostraha, kamerový systém, kancelář správy areálu, prodejna potravin a kantýna. Areál je výborně dostupný osobními i nákladními auty, přímo před areálem je zastávka MHD. Parkování v areálu. V případě zájmu o prohlídku kontaktujte makléře nemovitosti.
  • Vložení inzerátu:
    13.9.2024
  • Kód:
    2622
  • K dispozici od:
    0.0.0
  • Typ nemovitosti:
    Kancelář
  • Typ budovy:
    Montovaná
  • Zastavěná plocha:
    1927 m2
  • Podlahová plocha:
    330 m2
  • Stav objektu:
    Velmi dobrý
  • Energetická náročnost:
    B - Velmi úsporná
  • Podle vyhlášky:
    c. 78/2013 Sb.
  • Nabídky v okolí:
  • Informace o obci:
    Obec Praha má 1257158 obyvatel, z toho 889974 v produktivním věku.
    V obci se nachází pošta.
    V obci se nachází škola, popř. školka.
    V obci se nachází zdravotní zařízení.
    V obci je rozvod kanalizace.
    V obci je rozvod městské vody.
    V obci je rozvod plynu.

Podobné nabídky v okolí

Lokalita: Tiskařská , Praha, Česká republika Tiskařská, Praha