Pronájem nebytových prostor 283 m2 - Mostecká 1, Vsetín
            
            
                
  Cena:
          104 Kč/m2/měsíc
    
          Stav:Volný
    
   
     
         
         
         283 m2, cihlová,  parcela 1203 m2      
        
        Popis:
      
                      K pronájmu nabízíme celkem 583 m2 různých kancelářských,  obchodních a skladových prostor přímo v centru všeho dění ve Vsetíně,  na Mostecké 361. 
Výhodnou polohou a atraktivitou interiéru i exteriéru zaujmou a pot...ěší Vaše klienty i zaměstnance polokruhové kanceláře s panoramatickým výhledem,  lehký,  čistý a moderní styl,  vynikající stav celé budovy,  ale i praktické věci,  jako snadné a chráněné parkování na nádvoří,  nákladní výtah,  klimatizace apod. 
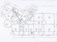
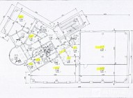
Je možné si pronajmout jak jednotlivý menší prostor,  cca od 11 m2,  tak i větší celek kolem 60 m2 s vlastními toaletami a kuchyňkou.  Na fotografiích jsou uvedena čísla místností dle půdorysů jednotlivých podlaží,  které jsou rovněž mezi ukázkami.  Pro detailní výběr a domluvu doporučuji si stáhnout kompletní sadu fotografií i plánů ve vyšším rozlišení zde:  https: //uloz. to/file/XokVNy8BL5Wb/op - a - kanc - vsetin - mostecka - 361 - 58fhd - zip
V 1. NP (první nadzemní patro) jde o obchůdek 44, 74 m2 se samostatným vchodem z ulice,  s výklady a zádveřím chráněnými vnitřní rolovací mříží,  5 místností:  107 zádveří,  108 prodejna 27, 5 m2,  109 kabinky,  110 sklad 10 m2 a 111 sociální zařízení WC,  cena 11. 920 Kč/ měsíc.  Všechny ceny jsou zde uvedeny včetně energií a DPH na služby a jsou k jednání.  Dále tedy: 
2. NP (druhé nadzemní patro):  
204  -  11 m2  -  kancelář s oknem  -  2566 kč
205  -  24, 63 m2  -  polokruhová kancelář s panoramatickým výhledem na J - SZ  -  5745 kč
3. NP (třetí nadzemní patro): 
304  -  24, 68 m2  -  polokruhová kancelář s panoramatickým výhledem na J - SZ  -  5757 kč
314,  322 a 323  -  34, 31 m2  -  2 krát  kancelář s oknem a menší sklad bez okna  -  7785 kč
317  -  35, 67 m2  -  čtvercová kancelář se 2 okny SZ a 1 SV  -  8320 kč
320  -  8, 15 m2  -  kuchyňka  -  1460 kč
326 a 327  -  45, 5 m2  -  dvě kanceláře s okny na J a Z s vlastní kuchyňkou a skladem 303  -  10. 448 kč
307  -  12, 14 m2  -  3 krát  sociální zařízení WC + 2 krát  umyvadlo z chodby  -  2174 kč
4. NP (čtvrté nadzemní patro)  -  Půdní skladový prostor 300 m2  -  40 kč/m2/měsíc
K dispozici je nádvoří přístupné přes uzamykatelnou bránu v průjezdu,  poskytující prostor pro parkování cca 22 osobních automobilů,  číslované parkovací místo lze rovněž pronajmout za 650 kč/měsíc.  Jinak v bezprostředním okolí je hned několik volných i placených veřejných parkovišť.  
Přímo naproti budově je pošta a bankomat ČSOB,  Era a Poštovní spořitelny,  v nejbližším okolí do 100 m je potom bankomat KB,  občerstvení,  denní bar,  hotel Magistr,  kavárny,  potraviny Hruška a zastávky autobusů.  Do vzdálenosti 200 m jsou dostupné Albert,  pizzérie,  restaurace U tří slunečnic,  lékárna,  knihovna,  infocentrum,  policie,  bankomaty České spořitelny,  Air Bank a Uni Credit Bank,  městské lázně apod.  Do 300 m potom Jednota,  Městský,  Katastrální a Finanční úřad,  nejrůznější MŠ,  ZŠ,  SŠ a VŠ,  a cca 600 m je to na vlakové a autobusové nádraží. 
           
          
    - Vložení inzerátu:16.10.2019  
- Kód:00005  
- Typ nemovitosti:Kancelář  
- Typ budovy:Cihlová  
- Podlahová plocha:283 m2 
- Plocha parcely:1203 m2 
- Stav objektu:Velmi dobrý  
- Telekomunikace:Telefon, Internet, Kabelové rozvody  
- Voda:dálkový vodovod  
- Elektřina:230 V, 380 V  
- Doprava:silnice, MHD, autobus, vlak  
- Topeni:lokální plynové  
- Plyn:plynovod  
- Odpad:kanalizace  
- Komunikace:dlážděná  
- Bezbariérový přístup:Ano  
- Energetická náročnost:G - Mimořádne nehospodárná  
- Nabídky v okolí:
- Informace o obci:Obec Vsetín má 27296 obyvatel, z toho 19016 v produktivním věku.
 V obci se nachází pošta.
 V obci se nachází škola, popř. školka.
 V obci se nachází zdravotní zařízení.
 V obci je rozvod kanalizace.
 V obci je rozvod městské vody.
 V obci je rozvod plynu.
 
 
 
    Lokalita:
    
        Mostecká 1, Vsetín, okres Vsetín, Česká republika
        
                                                                                                                                                                                                                                                                    Mostecká 1, Vsetín