• Sledovat cenu
  •  

Zasílání upozornění emailem:

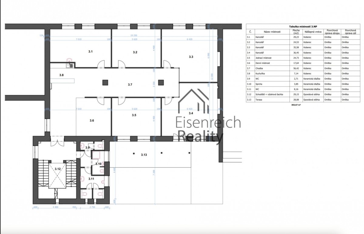
Pronájem nebytových prostor 250 m2 - Na Brně, Nový Hradec Králové, Hradec Králové, okr. Hradec Králové

Cena: 50 000 Kč/měsíc
Stav:Volný
250 m2, cihlová
Popis: Nabízíme k pronájmu prostorné kancelářské prostory o celkové výměře 250 m2 ve 2. patře administrativní budovy.

Dispozice:

5 samostatných kanceláří vhodných pro menší i větší pracovní týmy

zařízená kuchyňka př...ímo v prostorách

toalety a sprcha k dispozici na chodbě

Další výhody:

v ceně nájemného jsou zahrnuta 2 parkovací stání

snadná dostupnost MHD i autem

reprezentativní prostředí vhodné pro sídlo firmy

Prostory jsou ihned k dispozici. V případě dotazů mě kontaktujte.
Lokalita: Na Brně , Nový Hradec Králové, Hradec Králové, okres Hradec Králové, Česká republika Na Brně, Nový Hradec Králové, Hradec Králové, okr. Hradec Králové

Kontakt

Bc. Daniel Eisenreich



Volná pracovní místa ExpertPrace.cz
  • Objednání prohlídky a více informací
  •  
  • Poslat na e-mail
  •  

Zasílání odkazu na realitu emailem: