• Sledovat cenu
  •  

Zasílání upozornění emailem:

Pronájem nebytových prostor 236 m2 - Štursova 1, Brno, okr. Brno-město (již není v nabídce)

Cena: 2 136 Kč/m2/rok
Stav:archiv
236 m2, cihlová
Popis: V zastoupení majitele nabízíme k pronájmu kancelářské prostory v lokalitě Brno - Komín. Jedná se o velice hezké kanceláře v těsné blízkosti zastávky MHD a vlastním parkováním. Kanceláře se nachází v 1. patře s vlastním v...stupem jak z dvorní části tak ze schodiště budovy. Prostor má vlastní plynový kotel. Možnost internetové připojeníového připojení UPC.
Prohlídky po domluvě s uvedeným makléřem.


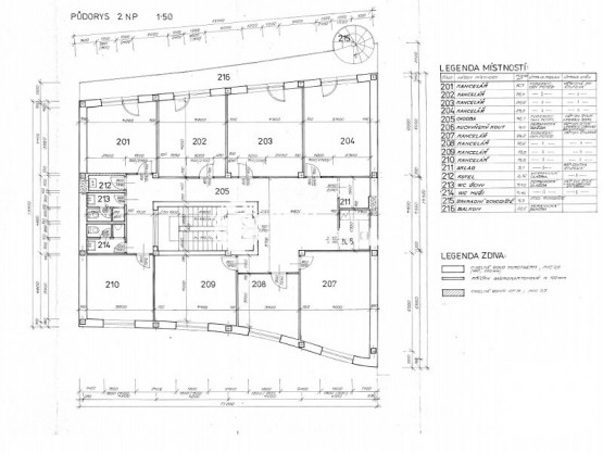
Aktuální dispozice:
Kancelářské prostory o celkové výměře 236 m2.
8 krát kancelář, samostatná kuchyňka, sklad/šatna, sociální zařízení WC muži, sociální zařízení WC ženy, kotelna/úklidová místnost, terasa.
Samostatné parkování ve dvoře pro 4 automobily, které je zahrnuto v ceně nájmu. Z parkoviště samostatný vstup do kanceláří.
Více informací v RK.
Neplatíte provizi!
  • Vložení inzerátu:
    8.7.2019
  • Kód:
    N/RSB/17499/18
  • K dispozici od:
    0.0.0
  • Typ nemovitosti:
    Kancelář
  • Typ budovy:
    Cihlová
  • Podlahová plocha:
    236 m2
  • Stav objektu:
    Velmi dobrý
  • Energetická náročnost:
    G - Mimořádne nehospodárná
  • Nabídky v okolí:
  • Informace o obci:
    Obec Brno má 371371 obyvatel, z toho 256490 v produktivním věku.
    V obci se nachází pošta.
    V obci se nachází škola, popř. školka.
    V obci se nachází zdravotní zařízení.
    V obci je rozvod kanalizace.
    V obci je rozvod městské vody.
    V obci je rozvod plynu.

Podobné nabídky v okolí

Lokalita: Štursova 1, Brno, okres Brno-město, Česká republika Štursova 1, Brno, okr. Brno-město