• Sledovat cenu
  •  

Zasílání upozornění emailem:

Pronájem nebytových prostor 20 m2 - Štýřice , Brno, okr. Brno-město (již není v nabídce)

Cena: 0 Kč/m2/měsíc
Stav:archiv
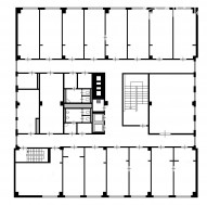
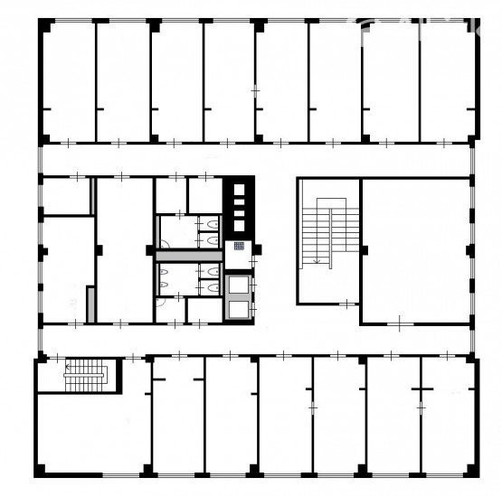
20 m2, panelová
Popis: Pronájem kancelářských prostor v administrativní budově. Jedná se o 7 podlažní objekt umístěný v klidné a příjemné lokalitě centra Brna, nedaleko od obchodní a průmyslové zóny, soustředěné v jižní části Brna v blízkosti d...álnice D1 s dobrou občanskou dostupností do centra města. Přístup do budovy dle domluvy 24/7. V okolí je dostatečná občanská vybavenost. V budově jsou k dispozici kanceláře o výměře 19 - 50m2. Ve všech kancelářích je rozvod telefonní sítě a okamžitá možnost zavedení připojení internetové připojeníu, který je přiveden optickým kabelem. Součástí každého podlaží je sociální zázemí včetně kuchyněk. Přístupnost do jednotlivých podlaží je ze vstupní haly dvěma osobními výtahy, popřípadě centrálním schodištěm. V budově je možnost pronájmu jak samostatných kanceláří, tak i komplexu více kanceláří, i samostatného celého podlaží. Budova disponuje i kongresovým sálem, který je možné pronajmout za účele využití pro semináře , školení, firemní a společenské akce. Kapacita sálu cca. až 200 osob.
Objekt je střežen kamerovým systémem a zabezpečen EZS s vyvedením na PCO. Prostory jsou volné k okamžitému pronájmu.
Pro více informací kontaktujte makléře. Pokud jste si nevybrali z uveřejněné nabídky, zadejte nám prosím Vaši poptávku a my se pokusíme najít odpovídající nemovitost.

Podobné nabídky v okolí

Lokalita: Štýřice , Brno, okres Brno-město, Česká republika Štýřice , Brno, okr. Brno-město, Jihomoravský kraj