• Sledovat cenu
  •  

Zasílání upozornění emailem:

Pronájem nebytových prostor 195 m2 - Brněnská, Žďár nad Sázavou (již není v nabídce)

Cena: 20 224 Kč/měsíc
Stav:archiv
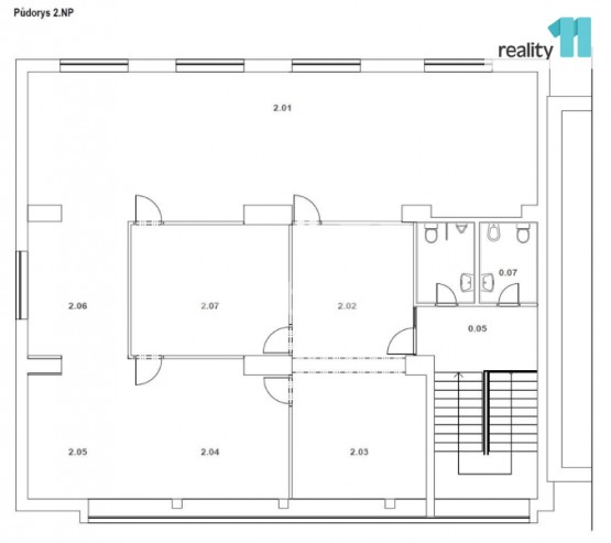
195 m2, cihlová, parcela 560 m2
Popis: + služby + DPH. Reality 11 Vám zprostředkují pronájem kancelářských prostor v komerční budově v ulici Brněnská ve Žďáře nad Sázavou. Jedná se o samostatné prostory ve druhém nadzemním podlaží s vlastním sociálním zázemím o ...celkové užitné ploše 195 m². Objekt je díky své poloze velice dobře dostupný i pro veřejnost. Dále je možné si pronajmout parkovací stání před objektem a v případě potřeby po dohodě další prostor, který se nachází v prvním podzemním podlaží a může sloužit například jako archiv. Dispoziční řešení v samostatném půdorysu. Objekt má samostatné měření tepla (plynové vytápění), elektřiny, vody a je napojen na EZS. Služby jsou účtovány samostatně dle skutečných nákladů. Pronájem kancelářských prostor je možný od 1. 3. 2023, budou vyklizeny a připraveny k nastěhování. Při podpisu smlouvy o nájmu jsou požadovány tyto platby, nájemné a služby na měsíc dopředu a dále vratná kauce. V případě zájmu o více informací kontaktujte makléře společnosti. Ev. číslo: 25048. Energetický štítek: D (180 kWh/m2/rok).
  • Vložení inzerátu:
    17.12.2023
  • Kód:
    3723520
  • Typ nemovitosti:
    Kancelář
  • Typ budovy:
    Cihlová
  • Zastavěná plocha:
    292 m2
  • Podlahová plocha:
    195 m2
  • Plocha parcely:
    560 m2
  • Stav objektu:
    Velmi dobrý
  • Umístění objektu:
    Rušná část
  • Energetická náročnost:
    D - Méne úsporná
  • Ukazatel náročnosti:
    180 kWh/m2
  • Nabídky v okolí:
  • Informace o obci:
    Obec Žďár nad Sázavou má 23038 obyvatel, z toho 16309 v produktivním věku.
    V obci se nachází pošta.
    V obci se nachází škola, popř. školka.
    V obci se nachází zdravotní zařízení.
    V obci je rozvod kanalizace.
    V obci je rozvod městské vody.
    V obci je rozvod plynu.

Podobné nabídky v okolí

Lokalita: Brněnská , Žďár nad Sázavou, okres Žďár nad Sázavou, Česká republika Brněnská, Žďár nad Sázavou