Pronájem nebytových prostor 180 m2 - nám. 17. listopadu, Hodonín (již není v nabídce)
Cena:
22 000 Kč/měsíc
Stav:archiv
180 m2, cihlová
Popis:
(+energie). Pronájem prostor vhodných ke kancelářským účelům, nabízení služeb nebo prostor pro drobnou výrobu v centru Hodonína.
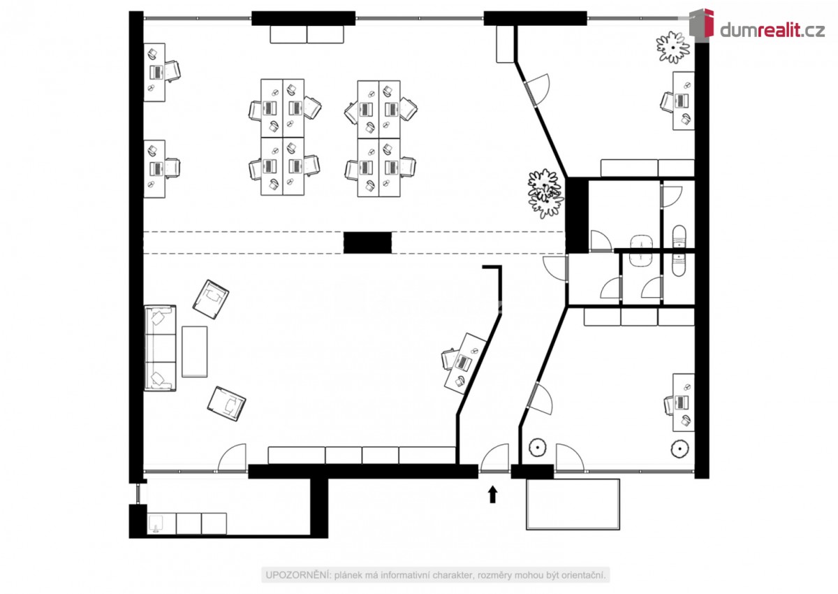
Nabízíme k pronájmu prostory o celkové ploše cca 180 m², které se nacházejí ve 3. nadzemn...ím podlaží komerčního objektu přímo v centru Hodonína, na ulici nám. 17. listopadu.
Dispozice a vybavení:
- samostatný prostor s vlastním sociálním zázemím a kuchyňkou
- plocha je rozdělen na dvě samostatné kanceláře, jednu větší průchozí kancelář , sociální zázemí a kuchyňku (viz půdorys)
- k dispozici je také balkón
Využití:
- prostory jsou vhodné pro administrativní, obchodní činnost nebo poskytování služeb.
Podmínky nájmu:
- k nájmu budou připočteny zálohy na energie
- při podpisu nájemní smlouvy se hradí vratná kauce ve výši dvou měsíčních nájmů
Další možnosti:
- ve stejné budově v 1. nadzemním podlaží nabízíme k pronájmu i další prostory o výměře cca 130 m² vhodné pro skladování nebo jako další podnikateslý prostor (kanceláře, služby, drobná výroba).
V případě zájmu o více informací nebo sjednání prohlídky nás neváhejte kontaktovat. Provize realitní kanceláře je hrazena ze strany zájemců ve výši 22 000, - Kč ( k provizi bude připočteno DPH). Ev. číslo: 649322. Energetický štítek: G
- Vložení inzerátu:
20.11.2024
- Kód:
3886851
- Typ nemovitosti:
Kancelář
- Typ budovy:
Cihlová
- Podlahová plocha:
180 m2
- Stav objektu:
Dobrý
- Umístění objektu:
Centrum
- Energetická náročnost:
G - Mimořádne nehospodárná
- Nabídky v okolí:
- Informace o obci:
Obec Hodonín má 92 obyvatel, z toho 63 v produktivním věku.
V obci je rozvod městské vody.
V obci je rozvod plynu.
Lokalita:
nám. 17. listopadu , Hodonín, okres Hodonín, Česká republika
nám. 17. listopadu, Hodonín