• Sledovat cenu
  •  

Zasílání upozornění emailem:

Pronájem nebytových prostor 169 m2 - Nad lesním divadlem 1318, Praha (již není v nabídce)

Cena: 55 000 Kč/měsíc
Stav:archiv
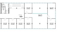
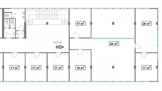
169 m2, panelová
Popis: Pronájem souboru kanceláří v administrativní budově Office Park Zálesí nacházející se v zajímavé lokalitě na Praze 4 Braník. Kanceláře o velikosti 169 m2 se nacházejí v 2NP (druhé nadzemní patro) bez výtahu v samo...statně uzavřené části, skládají se ze 4 samostatných kanceláří, chodby a prostorného openspace rozděleného skleněnou stěnou. V ceně nájmu jsou 2 parkovací stání na oploceném parkovišti u budovy zdarma, další parkovací místa 1. 500, - Kč/měs. Ke kancelářím můžete využívat kuchyňský kout, sociální zázemí a recepci. Kanceláře jsou vybaveny koberci, žaluziemi a osvětlením, k dispozici je za poplatek internetové připojení. Nájemné 55. 000, - Kč/měs bez DPH plus služby a energie 10. 000, - /měsíc. Platba za energie a služby je konečná. Přístup do budovy 24/7, služby recepce 8 - 17 hod. Výborná dopravní dostupnost automobilem a také autobusem z metra Kačerov jezdí 5 linek v intervalu 4 minut. Domluvíme Vám termín prohlídky v prostorách je ještě současný nájemce. U této zakázky neplatíte provizi RK.
  • Vložení inzerátu:
    29.5.2025
  • Kód:
    00045
  • K dispozici od:
    0.0.0
  • Typ nemovitosti:
    Kancelář
  • Typ budovy:
    Panelová
  • Podlaží:
    2
  • Podlahová plocha:
    169 m2
  • Stav objektu:
    Velmi dobrý
  • Umístění objektu:
    Rušná část
  • Doprava:
    silnice, dálnice, MHD, autobus, vlak
  • Energetická náročnost:
    G - Mimořádne nehospodárná
  • Nabídky v okolí:
  • Informace o obci:
    Obec Praha má 1257158 obyvatel, z toho 889974 v produktivním věku.
    V obci se nachází pošta.
    V obci se nachází škola, popř. školka.
    V obci se nachází zdravotní zařízení.
    V obci je rozvod kanalizace.
    V obci je rozvod městské vody.
    V obci je rozvod plynu.

Podobné nabídky v okolí

Lokalita: Nad lesním divadlem 1318, Praha, Česká republika Nad lesním divadlem 1318, Praha