• Sledovat cenu
  •  

Zasílání upozornění emailem:

Pronájem nebytových prostor 1060 m2 - Louny , okr. Louny (již není v nabídce)

Cena: 55 Kč/m2/měsíc
Stav:archiv
1060 m2
Popis: Nájem Víceúčelových prostor ( Kanceláře, školící středisko, ubytování, montáž. . . ) LOUNY,

Cena nájmu: 55, - Kč/m2/měsíc,

Užitná plocha: 1. 060 m2,
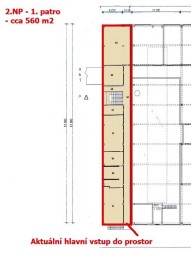
- 500 m2 přízemí (1.... NP (první nadzemní patro)),
- 560 m2 1. patro (2. NP (druhé nadzemní patro)),
Stavba: montovaný opláštěný ŽB skelet, Inž. sítě: veškeré inž. sítě, naddimenzovány. . . . . . . . . . . . . . . . . . . . . . . . . . . . . . . . . . . . . . . . . . .
Popis: Nabídka majitele k pronájmu bývalých administrativních prostor (sociální
zázemí) o celkové výměře 1. 060 m2, k variabilnímu využití (kanceláře, sklady,
výroba, služby, atd. ), včetně možnosti užívání/parkování zpevněných ploch
v oploceném a střeženém komplexu výrobního areálu v Lounech.
Prostory se nacházejí v přízemí (500 m2) a v 1. patře
(560 m2) spojené centrálním schodištěm, výška stropů 3, 6 m. Centrální
topení, včetně ohřevu TUV. Příjezd po obecní asfaltové cestě. V objektu jsou
nutné drobné stavební úpravy. Před areálem vlastní venkovní
parkoviště a BUS zastávka MHD Louny. Volný ihned.
- - - - - - - - - - - - - - - - - - - - - - Cena pronájmu: 55 Kč (2 EURO) /m2/měs. + DPH + energie (k jednání - veškeré investice možné umořit formou rentfree - dohoda)
- - - - - - - - - - - - - - - - - - - - - -
ARCHA průmyslová kancelář, .
Tel: 608827778, E - mail: archa. sklady@seznam. cz
www. archacs. cz
  • Vložení inzerátu:
    11.8.2021
  • Kód:
    1966/2392
  • Typ nemovitosti:
    Kancelář
  • Podlahová plocha:
    1060 m2
  • Stav objektu:
    Dobrý
  • Doprava:
    silnice, dálnice, MHD, autobus
  • Komunikace:
    asfaltová
  • Bezbariérový přístup:
    Ano
  • Nabídky v okolí:
  • Informace o obci:
    Obec Louny má 18832 obyvatel, z toho 13376 v produktivním věku.
    V obci se nachází pošta.
    V obci se nachází škola, popř. školka.
    V obci se nachází zdravotní zařízení.
    V obci je rozvod kanalizace.
    V obci je rozvod městské vody.
    V obci je rozvod plynu.

Podobné nabídky v okolí

Lokalita: Louny , okres Louny, Česká republika Louny , okr. Louny, Ústecký kraj