• Sledovat cenu
  •  

Zasílání upozornění emailem:

Pronájem nebytových prostor 105 m2 - Tovární 1129, Hodolany, Olomouc, okr. Olomouc (již není v nabídce)

Cena: 900 Kč/m2/rok
Stav:archiv
105 m2, cihlová
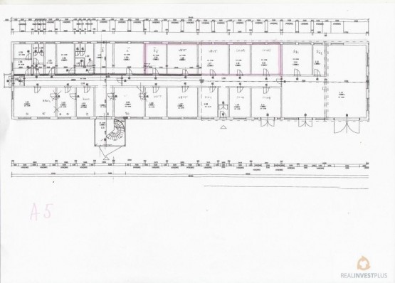
Popis: Nabízíme k pronájmu prostory cca 105m2 v 1. NP (první nadzemní patro) dvoupodlažní budovy + společné sociální zázemí s kuchyňkou. Rozměry jednotlivých místností: 16, 73m2; 23, 91m2; 23, 91m<...sup>2; 16, 48m2 a 24m2. Nájemné 900, - Kč/m2/rok + 250, - Kč/m2/rok energie. Parkovací místa před budovou. Nájemné celkem za měsíc 11. 297, - Kč. Volné od 1. 1. 2019. Provize RK dohodou.

Podobné nabídky v okolí

Lokalita: Tovární 1129, Hodolany, Olomouc, okres Olomouc, Česká republika Tovární 1129, Hodolany, Olomouc, okr. Olomouc