• Sledovat cenu
  •  

Zasílání upozornění emailem:

Pronájem bytu 5+1, 86 m2 - Machatého 1, Praha (již není v nabídce)

Cena: 20 000 Kč/měsíc
Stav:archiv
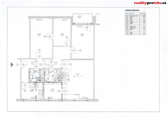
5+1, 86 m2, panelová, OV, 4. podlaží
Popis: Exkluzivně nabízíme k dlouhodobému pronájmu zrekonstruovanou atypickou bytovou jednotku 5+1, resp. 5+1+kk o podlahové ploše 90m2 ...v Praze 5 - Hlubočepy v ulici Machatého umístěnou ve třetím nadzemním podlaží bytového domu. K bytu náleží sklepní kóje v suterénu bytového domu o velikosti 4m2 (započítána do celkové podlahové plochy bytu). Byt k dispozici od 11. 3. 2019, prohlídky je možné realizovat dle domluvy již nyní.

Byt. jednotka zahrnuje byt o velikosti 4+kk a byt o velikosti 1+1, jež jsou spojeny společnou vstupní chodbou. Každý z bytů disponuje vlastní kuchyňskou linkou a koupelnou. Dispozici lze změnit taktéž na 3+kk a 2+1 bez nutnosti stavebních úprav, tj. pouhým přemístěním "zástěny" dveří.

Byt je svou dispozicí velmi dobře využitelný nejen pro vícegenerační bydlení, ale také jako velmi prostorově vkusně a prakticky řešené bydlení pro jednu rodinu požadující dostatek soukromí a užitného prostoru. Byt svým uspořádáním umožňuje také současně bydlení a podnikání (např. využitelností bytu 1+1 formou domácí kanceláře).

V obou bytech na podlaze dřevěné parketová podlaha (masiv) a dlažba. Kuchyňská linka bytové jednotky 4+kk na fotografiích, koupelna se sprchovým koutem, umyvadlem, toaletou a přípojkou na pračku. Kuchyňská linka bytové jednotky 1+1 disponuje vyčleněným prostorem pro připojení pračky, koupelna se sprchovým koutem, umyvadlem a toaletou.

Bytový dům:
Vnitřní části domu dobře udržované, vchod čistý, parkování možné u bytového domu (bez modrých rezidenčních placených parkovacích zón), k dispozici společná kočárkárna, sušárna a místnost se stolním tenisem a deskovým fotbalem.

Podmínky pronájmu:
- nájemné ve výši 20 000 Kč/měsíc - splatné zálohově (tj. měsíc dopředu)
- zúčtovatelné poplatky na 4 osoby ve výši 5 500 Kč / měsíc - splatné zálohově společně s nájemným
- elektrická energie bude přepsána na nájemce
- kauce ve výši 20 000 Kč - splatná při podpisu nájemní smlouvy
- provize RK ve výši 20 000 Kč - splatná při podpisu nájemní smlouvy (při podpisu nájemní smlouvy do 28. 2. 2019 sleva na provizi ve výši 15%)

Dopravní a veřejná obslužnost:
Mateřské školky od 500m, oblíbené dětské hřiště přímo u domu, poliklinika cca 300m, Billa cca 400m, Albert 500m, lékárna cca 350m, v pochůzkové vzdálenosti zastávka BUS a TRAM, SKI centrum Barandov cca 470m, výborné dopravní napojení na Pražský okruh atd.

Majitel si vyhrazuje právo výběru nájemce dle vlastního uvážení. Majitel byt poskytne k pronájmu pouze bezproblémovým osobám s dobrou platební morálkou, tj. osobám zaměstnaným se stálým finančním příjmem.

Pro bližší informace a sjednání prohlídky prosím kontaktujte makléře.
  • Vložení inzerátu:
    7.2.2019
  • Kód:
    00097
  • K dispozici od:
    0.0.0
  • Typ nemovitosti:
    Byt
  • Typ budovy:
    Panelová
  • Dispozice:
    5+1
  • Vlastnictví:
    OV
  • Podlaží:
    4
  • Podlahová plocha:
    86 m2
  • Lodžie:
    Ano
  • Sklep:
    Ano
  • Stav objektu:
    Dobrý
  • Voda:
    dálkový vodovod
  • Elektřina:
    230 V, 380 V
  • Topeni:
    ústřední dálkové
  • Odpad:
    kanalizace
  • Energetická náročnost:
    D - Méne úsporná
  • Podle vyhlášky:
    c. 78/2013 Sb.
  • Ukazatel náročnosti:
    114 kWh/m2
  • Nabídky v okolí:
  • Informace o obci:
    Obec Praha má 1257158 obyvatel, z toho 889974 v produktivním věku.
    V obci se nachází pošta.
    V obci se nachází škola, popř. školka.
    V obci se nachází zdravotní zařízení.
    V obci je rozvod kanalizace.
    V obci je rozvod městské vody.
    V obci je rozvod plynu.

Podobné nabídky v okolí

Lokalita: Machatého 1, Praha, Česká republika Machatého 1, Praha