• Sledovat cenu
  •  

Zasílání upozornění emailem:

Pronájem bytu 4+kk, 88 m2 - Luhačovská, Uherský Brod, okr. Uherské Hradiště (již není v nabídce)

Cena: 15 000 Kč/měsíc
Stav:archiv
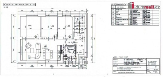
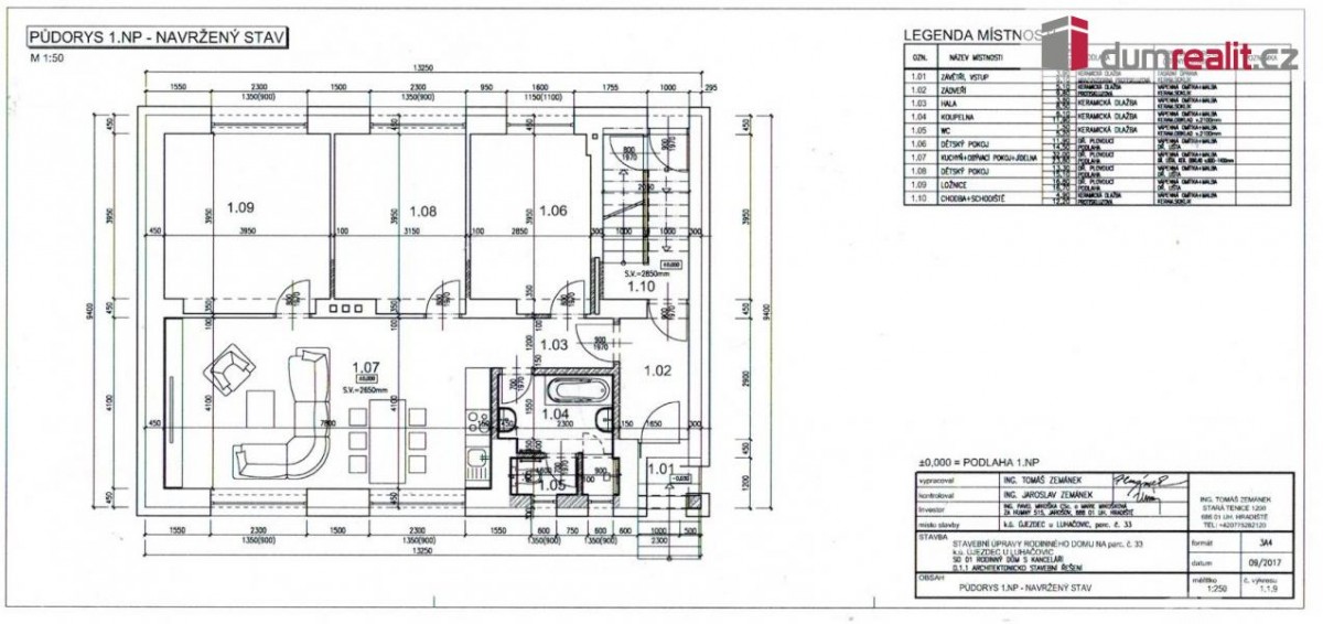
4+kk, 88 m2, cihlová, OV, 1. podlaží
Popis: +popl. 4500 Kč, +500 Kč internetové připojení. Dumrealit. cz Vám nabízí exkluzivní pronájem bytu 4+ kk po kompletní rekonstrukci v části Uherského Brodu - Ujezdci.
Byt se nachází v cihlové budově a zaujímá 88 m², to ...je kompletní půdorys přízemního podlaží. Dispozičně je řešen jako 4kk se třemi neprůchozími ložnicemi ( 12, 13 a 17 m²) a velkou obytnou místností ( 32 m²) s kuchyňským koutem. Kuchyňská linka má lednici s mrazničkou, elektrický sporák se sklokeramickou deskou a digestoř, dále dřez a přípravu na myčku.
Koupelna je veliká, prosvětlená, má vanu, sprchovací kout a přípojku na pračku. sociální zařízení WC je samostatně.
Topení je řešeno centrálně plynovým kotlem.
Dům je mimořádně úsporný, s energetickým hodnocením tř. B, je zde zateplený, s 3 - komorovými skly v plastových oknech, s tepelně izolovanou podlahou. Energie: voda, plyn a elektřina mají samostatné odpočty spotřeby. V budově je serverovna s možností pevného internetové připojeníu, dále sklepní kóje, a také výstup na dvorek a jeho využití.
V ceně pronájmu je parkování pro dvě osobní auta před domem.
Doporučujeme jako klidné dlouhodobé bydlení pro rodinu. Ev. číslo: 622918. Energetický štítek: B
  • Vložení inzerátu:
    9.10.2023
  • Kód:
    3689907
  • Typ nemovitosti:
    Byt
  • Typ budovy:
    Cihlová
  • Dispozice:
    4+kk
  • Vlastnictví:
    OV
  • Podlaží:
    1
  • Podlahová plocha:
    88 m2
  • Terasa:
    Ano
  • Sklep:
    Ano
  • Stav objektu:
    Velmi dobrý
  • Energetická náročnost:
    B - Velmi úsporná
  • Nabídky v okolí:
  • Informace o obci:
    Obec Uherský Brod má 17042 obyvatel, z toho 11846 v produktivním věku.
    V obci se nachází pošta.
    V obci se nachází škola, popř. školka.
    V obci se nachází zdravotní zařízení.
    V obci je rozvod kanalizace.
    V obci je rozvod městské vody.
    V obci je rozvod plynu.

Podobné nabídky v okolí

Lokalita: Luhačovská , Uherský Brod, okres Uherské Hradiště, Česká republika Luhačovská, Uherský Brod, okr. Uherské Hradiště