• Sledovat cenu
  •  

Zasílání upozornění emailem:

Pronájem bytu 4+kk, 160 m2 - Na Perštýně, Praha 1, Staré Město, Praha (již není v nabídce)

Cena: 55 000 Kč/měsíc
Stav:archiv
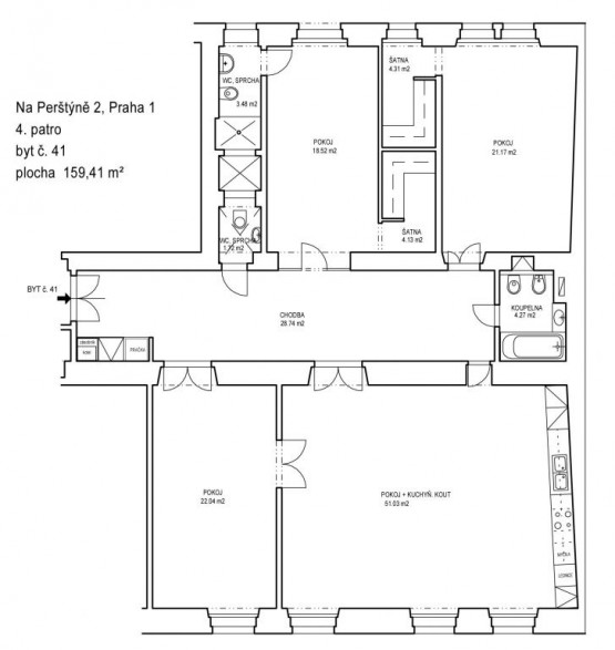
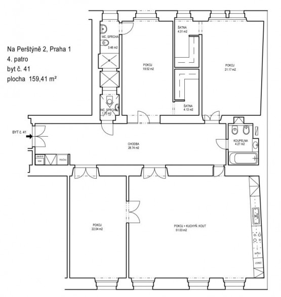
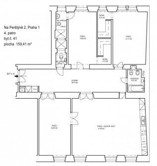
4+kk, 160 m2, cihlová, 5. podlaží
Popis: Nabízíme k pronájmu luxusní a prostorný byt 4+kk situovaný v historickém centru Starého Města. Byt je ve 4. patře v moc hezkým cihlovým domě včetně výtahu. Byt je stylový - š...tukované a klenuté stropy. K bytu patří balkon 2m2. Moderní kuchyně je vybavena myčkou, sporákem, sklokeramickou deskou, mirkovlnkou. V bytě jsou dvě koupelny. Jedna koupelna má vanu a toaletu. Druhá sprchový kout a toaletu. Dále je zde oddělená toaleta. V bytě pračka, sušička. V bytě 2 neprůchozí pokoje. Ke každé náleží šatna. Na podlaze parketová podlaha. Topení etážové. Byt má zabezpečovací systém. Prestižní bydlení v přímém centru Prahy. Výborná občanská vybavenost - restaurace, obchody, atd. Okolo historické památky. Pět minut chůze k Národnímu Divadlu, Karlův Most, Staroměstské náměstí.

Podobné nabídky v okolí

Lokalita: Na Perštýně , Praha 1, Staré Město, Praha, Česká republika Na Perštýně, Praha 1, Staré Město, Praha