• Sledovat cenu
  •  

Zasílání upozornění emailem:

Pronájem bytu 4+kk, 155 m2 - Jiráskova, Roudnice nad Labem, okr. Litoměřice

Cena: 20 000 Kč/měsíc
Stav:Volný
4+kk, 155 m2, cihlová, OV, 2. podlaží
Popis: Hledáte bydlení, které není jen „místem k přespání“, ale skutečným domovem v klidném a bezpečném prostředí? Nabízíme k pronájmu velkorysý byt v rodinném domě, který kombinuje prostornost, soukromí a možnost relaxace na za...hradě.
O jaký prostor se jedná?
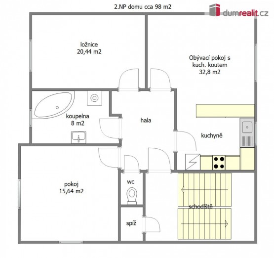
Byt o celkové ploše cca 155 m² se rozkládá ve druhém nadzemním podlaží a zčásti v útulném podkroví.
• Hlavní patro (2. NP (druhé nadzemní patro)): Dispozici 3+kk dominuje velice prostorná hala a prosvětlený obývací pokoj. Najdete zde vybavenou kuchyni (plynový sporák, myčka, lednice), koupelnu a samostatné sociální zařízení WC.
• Podkroví: Horní část tvoří příjemná denní místnost prosvětlená střešními okny a druhá koupelna s toaletou. Celý byt je přístupný po vnitřním schodišti.
Bonusy, které potěší:
• Zahrada: K pronájmu náleží možnost užívat zahradu – ideální pro ranní kávu nebo odpočinek.
• Zázemí: Součástí pronájmu je vlastní garáž a praktický sklep přímo v domě.
• Technické parametry: Ohřev vody a vytápění zajišťuje plynový kotel a bojler.
Koho hledáme?
Majitel si zakládá na dobrých sousedských vztazích a klidné atmosféře v domě. V přízemí bydlí maminka majitele, proto hledáme slušné, klidné a pohodové nájemníky, kteří ocení tiché prostředí a budou se k domu chovat s úctou. Preferujeme dlouhodobý pronájem.
Cena a poplatky:
• Nájemné: 20. 000, - Kč měsíčně.
• Energie: Elektřina a plyn budou přepsány přímo na vás, abyste měli svou spotřebu pod kontrolou. Pro představu: stávající roční spotřeba byla cca 2 MWh elektřiny a 1566 m³ plynu.
Pokud hledáte klidné útočiště a dáváte přednost lidskému přístupu, rádi vás domem provedeme.
Byt j evolný od 1. 5. 2026. Ev. číslo: 655142. Energetický štítek: G
  • Vložení inzerátu:
    25.3.2026
  • Kód:
    4175575
  • Typ nemovitosti:
    Byt
  • Typ budovy:
    Cihlová
  • Dispozice:
    4+kk
  • Vlastnictví:
    OV
  • Podlaží:
    2
  • Podlahová plocha:
    155 m2
  • Sklep:
    Ano
  • Stav objektu:
    Dobrý
  • Zařízený:
    Ano
  • Energetická náročnost:
    G - Mimořádne nehospodárná
  • Nabídky v okolí:
  • Informace o obci:
    Obec Roudnice nad Labem má 13094 obyvatel, z toho 9017 v produktivním věku.
    V obci se nachází pošta.
    V obci se nachází škola, popř. školka.
    V obci se nachází zdravotní zařízení.
    V obci je rozvod kanalizace.
    V obci je rozvod městské vody.
    V obci je rozvod plynu.
Lokalita: Jiráskova , Roudnice nad Labem, okres Litoměřice, Česká republika Jiráskova, Roudnice nad Labem, okr. Litoměřice

Kontakt

Ing. Jíří Šíma
Objednání prohlídky a více informací


Podobné nabídky v okolí


  • Objednání prohlídky a více informací
  •  
  • Poslat na e-mail
  •  

Zasílání odkazu na realitu emailem: