• Sledovat cenu
  •  

Zasílání upozornění emailem:

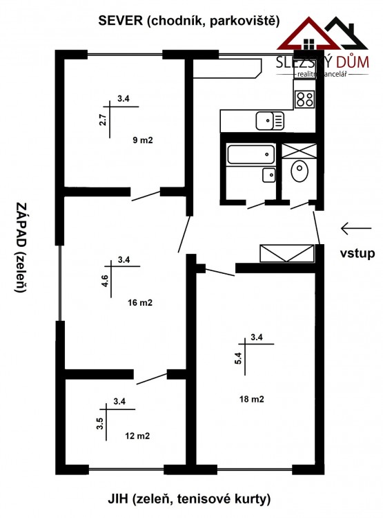
Pronájem bytu 4+1, 78 m2 - Kpt. Jaroše 788, Orlová, okr. Karviná

Cena: 8 900 Kč/měsíc
Stav:Volný
4+1, 78 m2, panelová, OV, 1. podlaží
Popis: Nabízíme pronájem bytu 4+1 v osobním vlastnictví, včetně sklepní koje, na ulici Kapitána Jaroše v Orlové, hned vedle tenisových kurtů, s nerušeným výhledem do zeleně.

- byt po ...rekonstrukci koupelny a kuchyně (2015)

- dispozice 4+1, celková výměra 78 m²

- podlaží: 1. vyvýšené

- sklepní koje ANO

- internetové připojení + IP TV - PODA (570 Kč/měsíc)

Vybavení a stav:

- kuchyňská linka s užívanými spotřebiči (myčka, lednice s mrazákem, mikrovlnná trouba, horkovzdušná trouba, plynový sporák, digestoř)

- koupelna s vanou, samostatné sociální zařízení WC, možnost ponechat pračku

- orientace oken do zeleně (velký pokoj, malý pokoj, obývací pokoj) a na parkoviště (malý pokoj, kuchyně)

- klidné prostředí u sportovišť, blízko škola, školka, zimní stadion

- byt nekuřácký, zvíře nelze nebo dle dohody

- trvalý zdroj příjmu ze zaměstnání podmínkou, bez dluhů, exekucí a insolvencí, s trvalým pobytem na území ČR

- upřednostňujeme zájemce o dlouhodobý pronájem

Finanční podmínky:

- měsíční nájemné: 8. 900 Kč

- záloha na služby (fond oprav, teplo, voda): 5. 021 Kč/měsíc pro 2 osoby (každá další osoba + 700 Kč/měsíc)

- spotřeba elektřiny a plynu v režii nájemce (současný dodavatel Innogy)

- nájemné včetně záloh splatné vždy do 25. dne předem na následující měsíc

- vratná kauce: 2× měsíční nájem včetně záloh = 28. 000 Kč

- provize RK: 10. 000 Kč

Celkový vstupní poplatek při převzetí bytu a podpisu podnájemní smlouvy:

8. 900 Kč (nájemné) + 5. 021 Kč (služby) + 28. 000 Kč (kauce) + 10. 000 Kč (provize RK)
= 51. 921 Kč

Byt je k dispozici.

Prohlídky možné kdykoliv po dohodě.

Více info na tel. : 725 293 483
  • Vložení inzerátu:
    27.9.2025
  • Kód:
    12644
  • K dispozici od:
    0.0.0
  • Typ nemovitosti:
    Byt
  • Typ budovy:
    Panelová
  • Dispozice:
    4+1
  • Vlastnictví:
    OV
  • Podlaží:
    1
  • Podlahová plocha:
    78 m2
  • Sklep:
    Ano
  • Stav objektu:
    Velmi dobrý
  • Rok rekonstrukce:
    2015
  • Umístění objektu:
    Klidná část
  • Voda:
    dálkový vodovod
  • Elektřina:
    230 V
  • Topeni:
    ústřední dálkové
  • Plyn:
    plynovod
  • Odpad:
    kanalizace
  • Energetická náročnost:
    G - Mimořádne nehospodárná
  • Nabídky v okolí:
  • Informace o obci:
    Obec Orlová má 32067 obyvatel, z toho 23727 v produktivním věku.
    V obci se nachází pošta.
    V obci se nachází škola, popř. školka.
    V obci se nachází zdravotní zařízení.
    V obci je rozvod kanalizace.
    V obci je rozvod městské vody.
    V obci je rozvod plynu.
Lokalita: Kpt. Jaroše 788, Orlová, okres Karviná, Česká republika Kpt. Jaroše 788, Orlová, okr. Karviná


Podobné nabídky v okolí


Volná pracovní místa ExpertPrace.cz
  • Objednání prohlídky a více informací
  •  
  • Poslat na e-mail
  •  

Zasílání odkazu na realitu emailem: