• Sledovat cenu
  •  

Zasílání upozornění emailem:

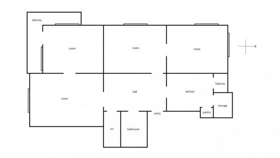
Pronájem bytu 4+1, 117 m2 - Mydlářka, Praha 6, Dejvice, Praha (již není v nabídce)

Cena: 30 000 Kč/měsíc
Stav:archiv
4+1, 117 m2, cihlová, OV, 2. podlaží
Popis: Prostorný byt v prvním patře kousek od stanice metra Dejvická. Z centrální haly přístup do celého bytu. Vybavená kuchyňská linka, dále lednice a pračka. Okna na jižní, západní a severní stranu poskytují dostatek světla. ... Prostorný moderní sklep. V domě, který celý prošel rekonstrukcí panuje přátelská atmosféra.

Podobné nabídky v okolí

Lokalita: Mydlářka , Praha 6, Dejvice, Praha, Česká republika Mydlářka, Praha 6, Dejvice, Praha