Pronájem bytu 3+kk, 99 m2 - V Zahradách, Beroun-Město, Beroun, okr. Beroun (již není v nabídce)
Cena:
22 000 Kč/měsíc
Stav:archiv
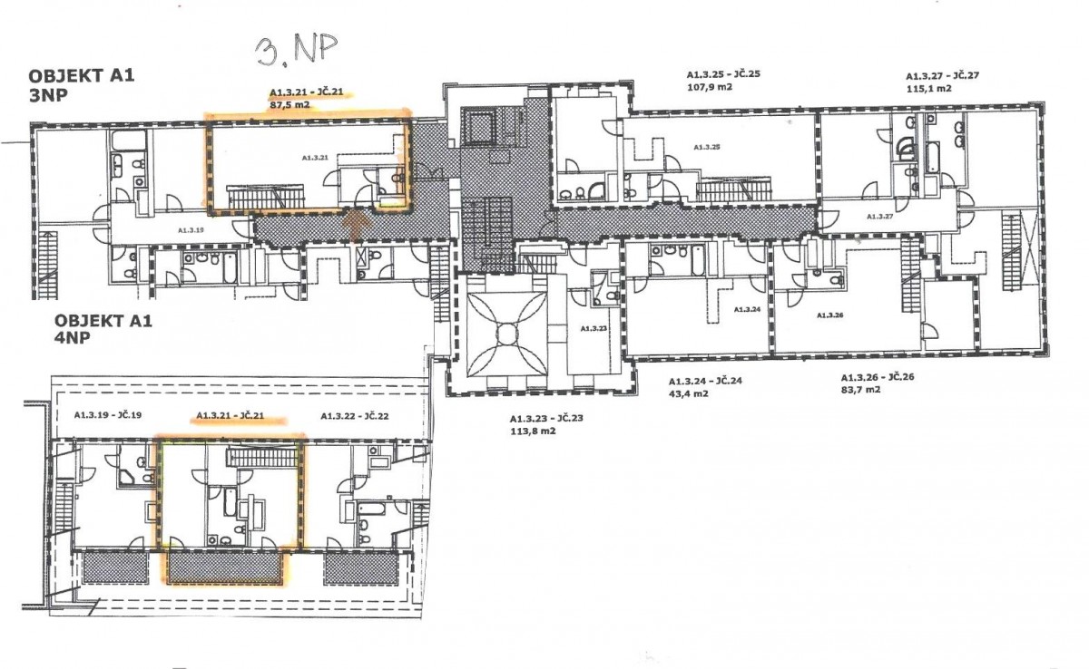
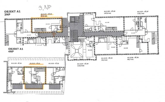
3+kk, 99 m2, cihlová, OV, 4. podlaží
Popis:
K pronájmu Vám nabízíme vzdušný a dobře řešený mezonetový byt 3+kk o podlahové ploše 87, 5 m2 s terasou o vel. 11, 6 m2 a parkovacím stáním přímo v centru ...Berouna 5 minut od Husova náměstí a Berounky - VOLNÝ OD 01. 05. 2025 - PROHLÍDKY MOŹNÉ v prvním nebo druhém dubnovém týdnu.
Cihlový byt se nachází v 3. a 4. NP (čtvrté nadzemní patro) bytového domu včetně výtahu. Vytápění zajišťuje vlastní plynová kotelna v domě. V bytovém domě je k dispozici kolárna a kočárkárna.
Byt má praktickou dispozici - viz. půdorys:
- vstupní chodba
- toaleta s umyvadlem
- obývací pokoj propojený s prostornou kuchyní s vestavnými
spotřebiči - lednice s mrazákem, menší myčka, indukční deska s el.
troubou, velká pracovní plocha, digestoř a schodištěm do horního
patra,
- 2 krát ložnice, každá se vstupem na terasu s jižní orientací, vybavená
markýzou , v jedné z ložnic je spací patro
- prostorná koupelna s sociální zařízení WC (pračka v bytě nezůstává)
Byt se pronajímá částečně vybavený (kuchyňská linka se spotřebiči) a vestavné skříně v ložnicích a spací patro, jinak bude vyklizen. K bytu dále náleží venkovní parkovací stání, které je součástí pronájmu. JINAK BUDE BYT VYKLIZEN.
Jedná se o velice oblíbenou lokalitu pro bydlení s klidným, zeleným vnitroblokem, v docházkové vzdálenosti najdete veškerou obč. vybavenost, školu, školku, státní i soukromé, bus spojení na Prahu a možnost procházek podél Berounky.
Výhody nemovitosti:
- top lokalita v Berouně
- prostorná terasa s markýzou, kde můžete grilovat
- vlastní parkovací místo
Ideální nemovitost pro rodinu. Majitel uvítá dlouhodobější pronájem.
Výše pronájmu: 22. 000 Kč
zálohy: bude upřesněno dle počtu osob
Vratná kauce: 33. 000 Kč
Provize RK: 24. 000 Kč včetně DPH
Byt je k dispozici od 1. 5. 2025. Na prohlídku Vás zvu již nyní.
- Vložení inzerátu:
27.3.2025
- Kód:
315/3670
- Typ nemovitosti:
Byt
- Typ budovy:
Cihlová
- Dispozice:
3+kk
- Vlastnictví:
OV
- Podlaží:
4
- Podlahová plocha:
99 m2
- Plocha parcely:
87 m2
- Terasa:
11 m2
- Stav objektu:
Velmi dobrý
- Bezbariérový byt:
Ano
- Voda:
dálkový vodovod
- Elektřina:
230 V
- Doprava:
silnice, dálnice, MHD, autobus, vlak
- Topeni:
ústřední plynové
- Plyn:
plynovod
- Odpad:
kanalizace
- Komunikace:
asfaltová
- Bezbariérový přístup:
Ano
- Energetická náročnost:
C - Úsporná
- Nabídky v okolí: