• Sledovat cenu
  •  

Zasílání upozornění emailem:

Pronájem bytu 3+kk, 98 m2 - 17. listopadu, Ostrava, okr. Ostrava-město (již není v nabídce)

Cena: 10 000 Kč/měsíc
Stav:archiv
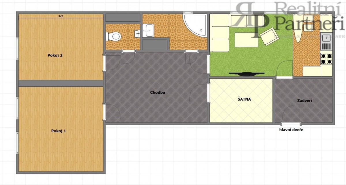
3+kk, 98 m2, cihlová, družstevní, 3. podlaží
Popis: Nabízíme k pronájmu dispozičně velice vkusně řešený byt, který je o velikosti 3+kk (bez balkonu). Celková podlahová plocha bytu je 98m². Byt je situovaný v 2NP (druhé nadzemní... patro)/6NP (šesté nadzemní patro) včetně výtahu a bezbariérovým přístupem. Byt se nachází na ulici 17. listopadu v Ostravě - Porubě. Dům je cihlový a je po revitalizaci: stupaček, elektřiny, plastových oken a vchodů. V bytě zůstává k užívání toto vybavení: zánovní elektrická trouba s el. indukční deskou, mikrovlnná trouba, myčka, barový stůl + židle. V blízkosti je veškerá občanská vybavenost: večerka, řeznictví, fakultní nemocnice Ostrava, ZŠ Komenského, mateřská škola, VŠB - TU, MHD (tramvajová zastávka hned u domu). Pro více informací či domluvení osobní prohlídky, prosíme, volejte nebo pište na uvedené kontakty.
  • Vložení inzerátu:
    31.7.2018
  • Kód:
    1 1140
  • Typ nemovitosti:
    Byt
  • Typ budovy:
    Cihlová
  • Dispozice:
    3+kk
  • Vlastnictví:
    Družstevní
  • Podlaží:
    3
  • Podlahová plocha:
    98 m2
  • Stav objektu:
    Po rekonstrukci
  • Zařízený:
    Ano
  • Energetická náročnost:
    G - Mimořádne nehospodárná
  • Nabídky v okolí:
  • Informace o obci:
    Obec Ostrava má 303609 obyvatel, z toho 212976 v produktivním věku.
    V obci se nachází pošta.
    V obci se nachází škola, popř. školka.
    V obci se nachází zdravotní zařízení.
    V obci je rozvod kanalizace.
    V obci je rozvod městské vody.
    V obci je rozvod plynu.

Podobné nabídky v okolí

Lokalita: 17. listopadu , Ostrava, okres Ostrava-město, Česká republika 17. listopadu, Ostrava, okr. Ostrava-město