• Sledovat cenu
  •  

Zasílání upozornění emailem:

Pronájem bytu 3+kk, 93 m2 - Vágnerova 1038, Praha (již není v nabídce)

Cena: 25 000 Kč/měsíc
Stav:archiv
3+kk, 93 m2, cihlová, OV, 2. podlaží
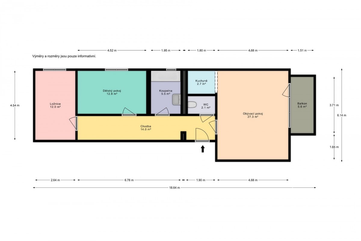
Popis: Nabízím k pronájmu prostorný, světlý byt 3+kk/kryté parkovací stání č. 19/balkón/sklep č. 17, 93. 1m2 (byt 82. 2m2 + balkón 7. 4m2 + sklep 3. 5...m2) v klidné a příjemné lokalitě Praha - Kbely, ulice Vágnerova. Byt se nachází v 1. patře ze 3. pater novostavby z roku 2009 ve velice dobrém stavu. Výměry a vybavení jednotlivých místností bytu: předsíň 16. 2m2 (vestavěná šatní skříň, vysavač, parní žehlička), obývací pokoj s kuchyňským koutem 32. 8m2 (kuchyňská linka na míru - indukční varná deska, horkovzdušná trouba, lednice s mrazákem, myčka, digestoř, sedačka, jídelní stůl a židle, obývací stěna na míru včetně TV a pracovního místa pro PC), pokoj 13. 5m2 (postel, šatní skříně, pracovní stůl, rostoucí židle), ložnice 12. 9m2 (postel, noční stolky, knihovna), koupelna 5. 4m2 (pračka, sušička, toaletní úložná skříňka), toaleta 1. 4m2. Orientace bytu: východ - obývací pokoj, sever - obývací pokoj, pokoj, ložnice, koupelna. Podlahy: obývací pokoj - dřevěná podlaha, ložnice a pokoj - koberec, předsíň, koupelna a toaleta - dlažba. V bytě na oknech všude žaluzie. Bezpečnostní dveře. Volné: ihned. V bezprostřední vzdálenosti se nachází lesopark Letňany a centrální park Kbely s amfiteátrem (je zde i skvělá restaurace Zastávka u srubu), které svádí ke sportovním aktivitám a procházkám a dále také golfové hřiště. Byt se nachází v pěší vzdálenosti (cca 200m) na aut. zastávku Kbely. Vlaková zastávka Praha - Kbely je 1km od bytu s pravidelnou přímou linkou na Masarykovo nádraží. Rodiče jistě ocení mateřskou školku v docházkové vzdálenosti - MŠ Albrechtická a MŠ Letců a dvě soukromé mateřské školky, dále základní škola Albrechtická a PED Academy. V bezprostřední blízkosti domu je supermarket Billa, vinárna, chovatelské potřeby a lékárna a větší nákupy obstaráte v OC Letňany. Nájem: 25. 000, - Kč, zálohové platby spojené s užíváním bytové jednotky: 5. 186, - Kč, elektřina v bytě: 2. 000, - Kč, jistota (kauce): 25. 000, - Kč, provize zprostředkovatele: 25. 000, - Kč. Pro více informací či sjednání prohlídky neváhejte kontaktovat makléře nemovitosti.
  • Vložení inzerátu:
    8.3.2024
  • Kód:
    00293
  • K dispozici od:
    0.0.0
  • Typ nemovitosti:
    Byt
  • Typ budovy:
    Cihlová
  • Dispozice:
    3+kk
  • Vlastnictví:
    OV
  • Podlaží:
    2
  • Podlahová plocha:
    93 m2
  • Balkón:
    7 m2
  • Sklep:
    4 m2
  • Stav objektu:
    Velmi dobrý
  • Rok výstavby:
    2009
  • Rok kolaudace:
    2009
  • Umístění objektu:
    Centrum
  • Telekomunikace:
    Internet, Kabelové rozvody
  • Voda:
    dálkový vodovod
  • Elektřina:
    230 V
  • Doprava:
    silnice, dálnice, MHD, autobus
  • Topeni:
    ústřední dálkové
  • Odpad:
    kanalizace
  • Komunikace:
    asfaltová
  • Zařízený:
    Ano
  • Energetická náročnost:
    C - Úsporná
  • Podle vyhlášky:
    c. 78/2013 Sb.
  • Ukazatel náročnosti:
    86 kWh/m2
  • Nabídky v okolí:
  • Informace o obci:
    Obec Praha má 1257158 obyvatel, z toho 889974 v produktivním věku.
    V obci se nachází pošta.
    V obci se nachází škola, popř. školka.
    V obci se nachází zdravotní zařízení.
    V obci je rozvod kanalizace.
    V obci je rozvod městské vody.
    V obci je rozvod plynu.

Podobné nabídky v okolí

Lokalita: Vágnerova 1038, Praha, Česká republika Vágnerova 1038, Praha