• Sledovat cenu
  •  

Zasílání upozornění emailem:

Pronájem bytu 3+kk, 92 m2 - Klírova, Praha 4, Chodov, Praha (již není v nabídce)

Cena: 19 000 Kč/měsíc
Stav:archiv
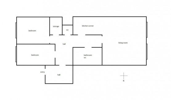
3+kk, 92 m2, panelová, OV, 4. podlaží
Popis: Nabízíme k pronájmu nezařízený slunný byt s nádherným výhledem přímo na Kunratický les o dispozici 3+kk o celkové rozloze 92 m2, který se nachází ve třetím patře cihl...ového domu včetně výtahu v ulici Klírova, Praha - Chodov. Dům je po rekonstrukci. Jsou zde dva 2 pokoje, předsíň, šatna, samostatné sociální zařízení WC, koupelna s druhým sociální zařízení WC, kuchyně a velký obývák, který vznikl spojením 2 pokojů. Byt bude nezařízený, zůstává obýváková stěna a kuchyňská linka bez lednice. K bytu náleží sklep o velikosti 4 m2. V domě je kolárna i kočárkárna. V ceně poplatků jsou zahrnuty veškeré energie a 100 MB internetové připojení. Výborná dopravní dostupnost 6 minut od metra Chodov, nonstop lékárna, Poliklinika s pohotovostí, škola, školka, bezproblémové parkování, obchodní domy Chodov, Lidl, Billa.

Podobné nabídky v okolí

Lokalita: Klírova , Praha 4, Chodov, Praha, Česká republika Klírova, Praha 4, Chodov, Praha