Pronájem bytu 3+kk, 82 m2 - Křižíkova, Praha 8, Praha (již není v nabídce)
Cena:
40 000 Kč/měsíc
Stav:archiv
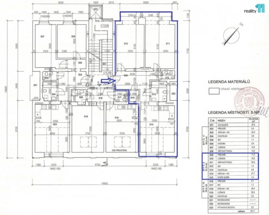
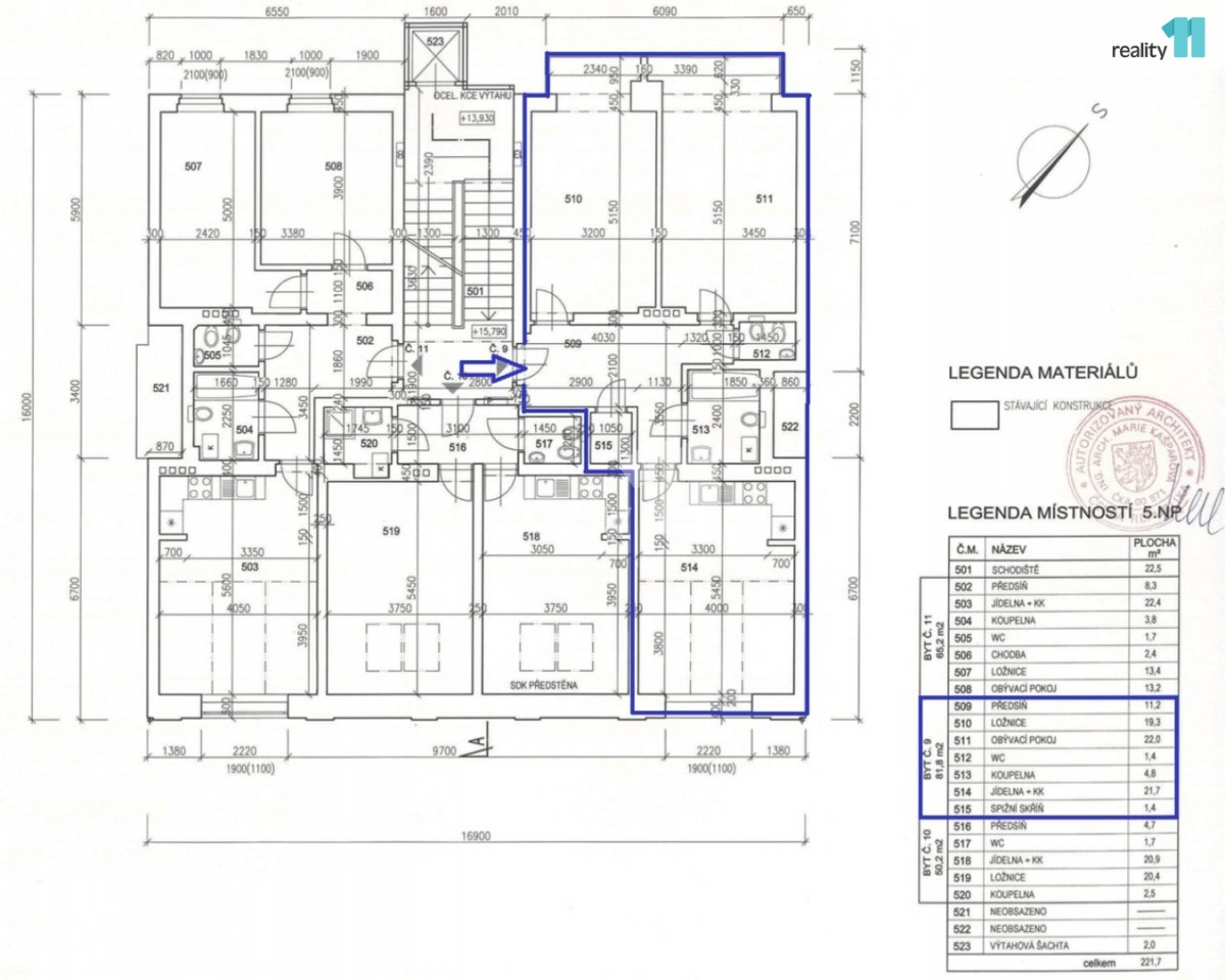
3+kk, 82 m2, cihlová, OV, 5. podlaží
Popis:
+ zálohy na energie a služby 4. 000, - Kč/měsíc, elektřina na nájemce, kauce, provize. Reality 11 Vám zprostředkují pronájem slunného bytu 3+kk s moc hezkým výhledem na Lyčk...ovo náměstí, po právě dokončené kompletní renovaci, s novou kuchyní, situovaného ve 4. patře zrekonstruovaného činžovního domu, v zelené části Karlína, pouze 3 minuty chůze od stanice metra i občanské vybavenosti.
Byt o obytné ploše 81. 8 m², je dispozičně rozdělen na prostornou vstupní chodbu, ze které se vchází do obývacího pokoje s kuchyňským koutem (lednice, myčka, sklokeramická deska, trouba, mikrovlnná trouba), do dvou ložnic, s okny ve výklenku a orientací do klidného vnitrobloku, což vám zajistí dostatek klidu na práci a odpočinek. Dále do koupelny s moderním sprchovým koutem a toaletou, samostatné toalety a komory s technickým zázemím. Na podlahách dřevěné parketová podlaha a dlažba, vyšší stropy, obložkové dveře, bezpečnostní venkovní dveře, v obývacím pokoji zajímavé okno, krásná atmosféra klasického domu, s moderními prvky.
Dům je postaven v klidné a příjemné lokalitě, s mnoha obchody, restauracemi a kavárnami v okolí, se snadnou dostupností do centra. Rovněž mnoho obchodů zaměřených na kvalitní suroviny a zdravou stravu, pro sportovce a milovníky běhu je k dispozici nedaleký park Vítkov. Volné ihned k nastěhování. Nájemné 44. 000, - Kč/měsíc + poplatky za energie a služby v domě 4. 000, - Kč/měsíc (2 osoby) + elektřina převedena na nájemce, kauce 44. 000, - Kč, provize 40. 000, - Kč.
Lze pronajmout i pro firmu, za předpokladu navýšení o DPH. Ev. číslo: 27313. Energetický štítek: C (97 kWh/m2/rok).
- Vložení inzerátu:
8.4.2025
- Kód:
3971919
- Typ nemovitosti:
Byt
- Typ budovy:
Cihlová
- Dispozice:
3+kk
- Vlastnictví:
OV
- Podlaží:
5
- Podlahová plocha:
82 m2
- Sklep:
Ano
- Stav objektu:
Po rekonstrukci
- Energetická náročnost:
C - Úsporná
- Ukazatel náročnosti:
97 kWh/m2
- Nabídky v okolí:
Lokalita:
Křižíkova , Praha 8, Praha, Česká republika
Křižíkova, Praha 8, Praha