• Sledovat cenu
  •  

Zasílání upozornění emailem:

Pronájem bytu 3+kk, 82 m2 - Měšťanská 4096, Hodonín (již není v nabídce)

Cena: 18 000 Kč/měsíc
Stav:archiv
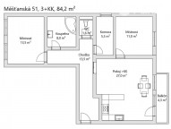
3+kk, 82 m2, cihlová, OV, 1. podlaží
Popis: Exkluzivně Vám nabízíme k pronájmu krásnou bytovou jednotku 3kk, která se nachází v 1. podlaží bytového domu poblíž centra Hodonína.
Byt. jednotka disponuje kuchyní, která je propojená s obývacím pokojem a jídelnou ze kte...ré můžeme vstoupit na lodžii. Dále dva samostatné pokoje, koupelnu s rohovou vanou, sociální zařízení WC a technická místnost ve které je umístěný kotel a zároveň slouží k uskladnění věcí. Kuchyňská linka je vybavena vestavěnými spotřebiči, včetně myčky, lednice.
K vybavení bytu dále patří kuchyňský stůl, židle, obývací stěna, v ložnice vestavěné skříně a postel včetně matrací, další pokoj je nevybavený. Velkou výhodou je klimatizace, kterou oceníte v letních měsících. Parkování je možné před domem. Volný od 1. 8. 2025.
Majitel bytu požaduje kauci ve výši 25. 000, - Kč. Pokud jste si nevybrali z uveřejněné nabídky, zadejte nám prosím Vaši poptávku a my se pokusíme najít odpovídající nemovitost.
  • Vložení inzerátu:
    30.6.2025
  • Kód:
    HO220080
  • K dispozici od:
    0.0.0
  • Typ nemovitosti:
    Byt
  • Typ budovy:
    Cihlová
  • Dispozice:
    3+kk
  • Vlastnictví:
    OV
  • Podlaží:
    1
  • Podlahová plocha:
    82 m2
  • Stav objektu:
    Velmi dobrý
  • Energetická náročnost:
    G - Mimořádne nehospodárná
  • Nabídky v okolí:
  • Informace o obci:
    Obec Hodonín má 92 obyvatel, z toho 63 v produktivním věku.
    V obci je rozvod městské vody.
    V obci je rozvod plynu.

Podobné nabídky v okolí

Lokalita: Měšťanská 4096, Hodonín, okres Hodonín, Česká republika Měšťanská 4096, Hodonín