• Sledovat cenu
  •  

Zasílání upozornění emailem:

Pronájem bytu 3+kk, 80 m2 - Táborská 1, Brno, okr. Brno-město (již není v nabídce)

Cena: 17 000 Kč/měsíc
Stav:archiv
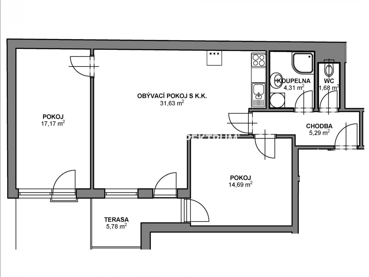
3+kk, 80 m2, cihlová, OV, 2. podlaží
Popis: Pronájem částečně zařízeného bytu 3+kk s terasou v lokalitě Brno - Židenice.
Byt s terasou o výměře 80 m2 se nachází ve 2. NP (druhé nadzemní patro) bytového domu... na ulici Táborská. Jedná se o lokalitu s velice dobrou občanskou dostupností do centra (MHD 10 - 15 minut). V okolí domu je veškerá občanská vybavenost. Byt bude volný od 1. 4. 2021. Cena 17. 000, - Kč nájemné + 3. 000, - Kč zúčtovatelné zálohy na energie a služby. Majitel požaduje vratnou kauci ve výši 20. 000, - Kč.
Dispozice bytu:
Dva samostatné pokoje 17 m2 a 15 m2 , dále velký obývací pokoj s kuchyní 31 m2 ze kterého je vstup na prostornou terasu 6 m2. Koupelna se sprchovým koutem, sociální zařízení WC samostatně. K bytu náleží sklep o výměře 3 m2 .
Vybavení bytu:
Kuchyňská linka včetně elektrického sporáku, lednice, varné konvice. Pračka, 2 krát šatní skříň, 4 krát psací stůl, 4 x židle, pohovka, manželská postel, jídelní stůl.
  • Vložení inzerátu:
    1.3.2021
  • Kód:
    N/RSB/18883/21
  • K dispozici od:
    0.0.0
  • Typ nemovitosti:
    Byt
  • Typ budovy:
    Cihlová
  • Dispozice:
    3+kk
  • Vlastnictví:
    OV
  • Podlaží:
    2
  • Podlahová plocha:
    80 m2
  • Terasa:
    Ano
  • Sklep:
    Ano
  • Stav objektu:
    Novostavba
  • Bezbariérový byt:
    Ano
  • Bezbariérový přístup:
    Ano
  • Energetická náročnost:
    C - Úsporná
  • Podle vyhlášky:
    c. 78/2013 Sb.
  • Ukazatel náročnosti:
    159 kWh/m2
  • Nabídky v okolí:
  • Informace o obci:
    Obec Brno má 371371 obyvatel, z toho 256490 v produktivním věku.
    V obci se nachází pošta.
    V obci se nachází škola, popř. školka.
    V obci se nachází zdravotní zařízení.
    V obci je rozvod kanalizace.
    V obci je rozvod městské vody.
    V obci je rozvod plynu.

Podobné nabídky v okolí

Lokalita: Táborská 1, Brno, okres Brno-město, Česká republika Táborská 1, Brno, okr. Brno-město