• Sledovat cenu
  •  

Zasílání upozornění emailem:

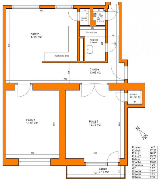
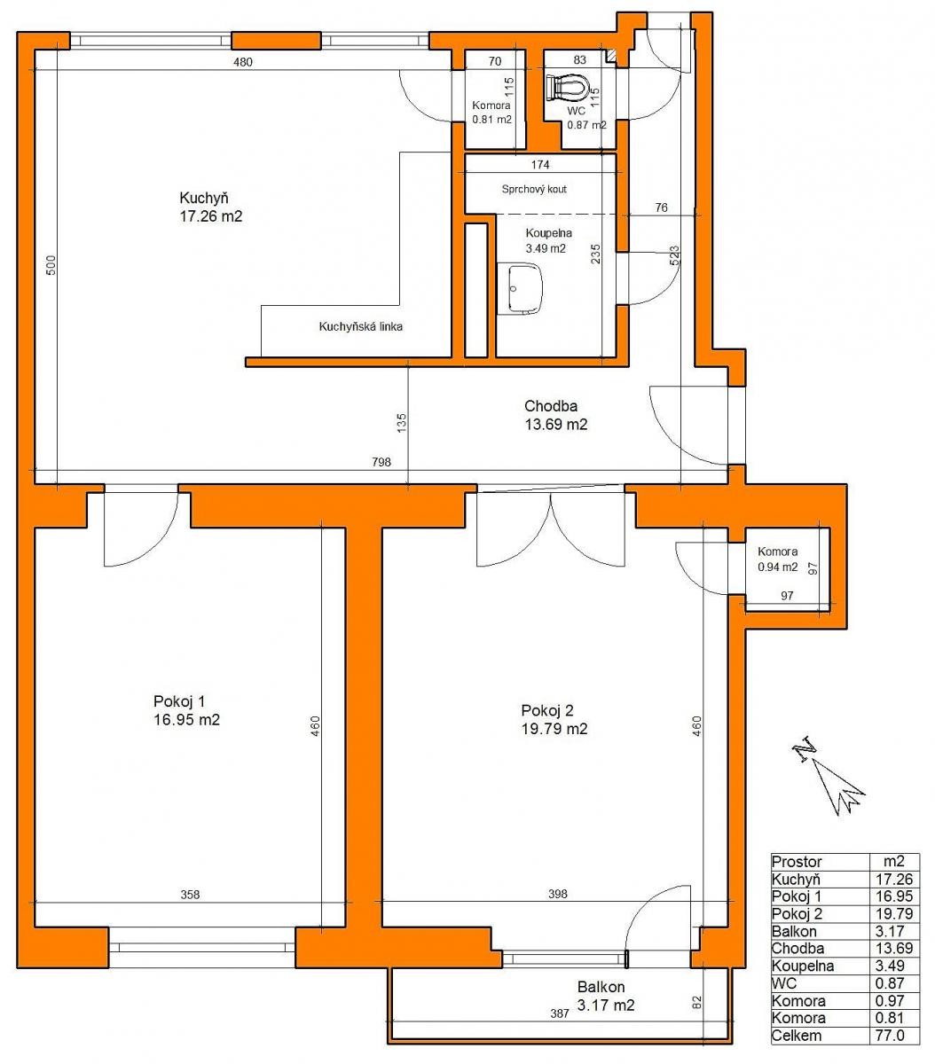
Pronájem bytu 3+kk, 77 m2 - Sladkovského 2055, Zelené Předměstí, Pardubice, okr. Pardubice

Cena: 19 500 Kč/měsíc
Stav:Volný
3+kk, 77 m2, cihlová, OV, 5. podlaží
Popis: Dobrý den, hledáte moderní byt v centru města včetně výtahu a balkónem? Nemůžete najít ten pravý, kompletně zrekonstruovaný, moderní? Už nemusíte hledat, právě jste ho našli.

Od 1. 6. 2026 se nám uvolní k pronájmu byt ...po rekonstrukci, kdy z původní dispozice 3+1 vznikla vzdušnější 3+kk o celkové výměře 77 m2. Není mnoho cihlových bytů ve starší zástavbě, které by měly balkón a také byly v domě včetně výtahu. Tento byt má obojí.

Lokace bytu je naprosto ideální, málo frekventovaná ulice Sladkovského v dosahu parku, ale zároveň městského života. Parkování v ulici, případně v nedalekých parkovacích domech. Byt se nachází v posledním 5. podlaží, takže Vás nikdo nad Vámi nebude rušit a zároveň budete mít příjemný rozhled do okolí.

Byt se pronajímá včetně vybavené kuchyňské linky s potřebnými spotřebiči (varné desky, trouby, odsavače par, myčky nádobí, ledničky, pračky se sušičkou).

Výše nájmu tohoto komfortního bytu vychází na 19. 500 Kč + 5. 000 Kč zálohy na energie, peněžitá jistota (vratná kauce) činí 39. 000 Kč a provize RK je ve výši 19. 000 Kč. A ještě jednou zmiňuji, byt je volný od 1. 6. 2026.

Děkuji za pozornost. Václav Růžička, realitní specialista.

Pronajímatel si vyhrazuje právo vybrat nájemce na základě jím zvolených kritérií.
Lokalita: Sladkovského 2055, Zelené Předměstí, Pardubice, okres Pardubice, Česká republika Sladkovského 2055, Zelené Předměstí, Pardubice, okr. Pardubice

Kontakt




Volná pracovní místa ExpertPrace.cz
  • Objednání prohlídky a více informací
  •  
  • Poslat na e-mail
  •  

Zasílání odkazu na realitu emailem: