• Sledovat cenu
  •  

Zasílání upozornění emailem:

Pronájem bytu 3+kk, 77 m2 - Revoluční 718, Šestajovice, okr. Praha-východ (již není v nabídce)

Cena: 20 000 Kč/měsíc
Stav:archiv
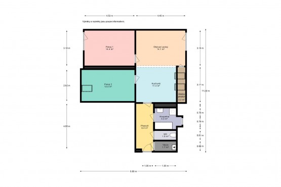
3+kk, 77 m2, cihlová, OV, 3. podlaží
Popis: Nabízím k pronájmu byt v osobním vlastnictví o velikosti 3+kk/sklep (byt 67. 1m2 + samostatný úložný prostor v bytě 6. 34m2 + sklep 3. 2m2 + možn...ost využívat společnou zahradu před domem cca 200m2) ve vyhledávané lokalitě Šestajovic, ulice Revoluční. Dům se nachází ve 2. patře ze 2. pater cihlového domu bez výtahu. Možnost parkovacího stání před domem. V předsíni se nacházejí prostorné vestavěné skříně na míru, vchod do koupelny s vanou, vchod do samostatné toalety a technická místnost s plynovým kotlem - ohřev topení a vody. V obývací pokoji je kuchyňská linka na míru (orientace na jihovýchod) ve tvaru U (lednice s mrazákem, mikrovlnná trouba, myčka, sklokeramická deska, trouba, digestoř, topinkovač, kávovar atd. , barový pult s barovými židlemi, jídelní stůl. Dále má byt dvě neprůchozí ložnice s orientací na severozápad (krb na biolíh, police a šatní skříň). Na podlahách: koupelna, toaleta, předsíň a technická místnost - dlažba, obývací pokoj a 2 krát ložnice - plovoucí podlaha. Velmi dobrá dopravní dostupnost - 18 min BUS stanice metro B, Černý Most nebo možnost vlakového spojení ze zastávky Praha – Klánovice do centra Prahy - 23 min, dobrá občanská vybavenost v místě, MŠ, ZŠ, pošta, různé obchody, nové nákupní centrum a několik restaurací. V blízkosti multifunkční sportoviště, koupaliště a Klánovický les, který je tradičním vycházkovým místem s hustou sítí turistických i cyklotras. Je zde také několik dětských hřišť a řada odpočívadel. Volné po dohodě. Nájem: 20. 000, - Kč, zálohové platby spojené s užíváním bytové jednotky: 1. 425, - Kč + každá další osoba (voda) 300, - Kč, záloha na elektřinu v bytě: 1. 800, - Kč/měsíc, záloha na plyn v bytě: 1. 500, - Kč/měsíc, jistota (kauce): 20. 000, - Kč, provize zprostředkovatele: 20. 000, - Kč. Pro více informací či sjednání prohlídky neváhejte kontaktovat makléře nemovitosti.
  • Vložení inzerátu:
    19.2.2025
  • Kód:
    00316
  • K dispozici od:
    0.0.0
  • Typ nemovitosti:
    Byt
  • Typ budovy:
    Cihlová
  • Dispozice:
    3+kk
  • Vlastnictví:
    OV
  • Podlaží:
    3
  • Podlahová plocha:
    77 m2
  • Sklep:
    3 m2
  • Stav objektu:
    Novostavba
  • Umístění objektu:
    Centrum
  • Telekomunikace:
    Internet, Kabelové rozvody
  • Voda:
    dálkový vodovod
  • Elektřina:
    230 V
  • Doprava:
    silnice, dálnice, MHD, autobus, vlak
  • Plyn:
    plynovod
  • Odpad:
    kanalizace
  • Komunikace:
    asfaltová
  • Zařízený:
    Ano
  • Energetická náročnost:
    C - Úsporná
  • Podle vyhlášky:
    c. 78/2013 Sb.
  • Ukazatel náročnosti:
    87.5 kWh/m2
  • Nabídky v okolí:
  • Informace o obci:
    Obec Šestajovice má 2849 obyvatel, z toho 1974 v produktivním věku.
    V obci se nachází pošta.
    V obci se nachází zdravotní zařízení.
    V obci je rozvod kanalizace.
    V obci je rozvod městské vody.
    V obci je rozvod plynu.

Podobné nabídky v okolí

Lokalita: Revoluční 718, Šestajovice, okres Praha-východ, Česká republika Revoluční 718, Šestajovice, okr. Praha-východ