• Sledovat cenu
  •  

Zasílání upozornění emailem:

Pronájem bytu 3+kk, 77 m2 - V podhájí 1186, Praha (již není v nabídce)

Cena: 22 000 Kč/měsíc
Stav:archiv
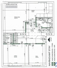
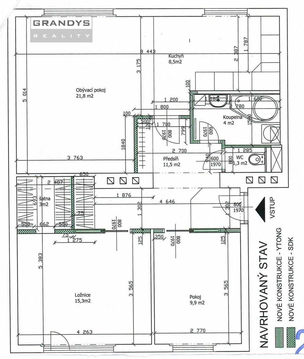
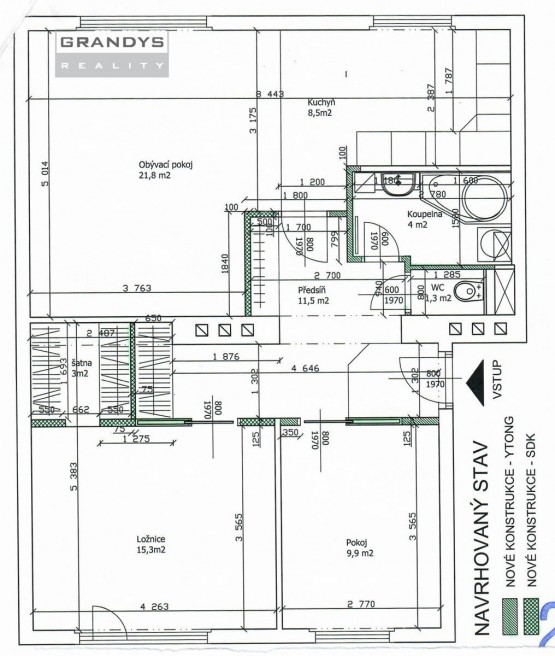
3+kk, 77 m2, cihlová, OV, 3. podlaží
Popis: Nabízíme k pronájmu dobře dispozičně řešený byt 3kk o podlahové ploše 77 m2. Byt po rekonstrukci se nachází v klidné ulici, ve třetím nadzemním podlaží cihlového domu, na kraji Podolí. Disponuje vybavenou kuchy...ňskou linkou se spotřebiči, prostorným obývákem, ložnicí, hlavní ložnicí se šatnou a balkonem, samostatnou toaletou a koupelnou s vanou. Topení je dálkové, ohřev vody vlastním kotlem.

Příjemný výhled z ložnic na Dvorecké stráně a Kavčí hory, z obývacího pokoje a kuchyně do zeleně. Příjemná je i pěší vzdálenost na tramvajovou zastávku Dvorce, cesta do centra Prahy zabere cca 10 minut.

K bytu náleží 15 m2 sklepní kóje, která je součástí pronájmu.
Výše nájmu činí 22. 000, - Kč, plus měsíční poplatky ~6000 Kč.

Neváhejte mě kontaktovat pro více informací a domluvení prohlídky.
  • Vložení inzerátu:
    19.5.2023
  • Kód:
    0211
  • K dispozici od:
    0.0.0
  • Typ nemovitosti:
    Byt
  • Typ budovy:
    Cihlová
  • Dispozice:
    3+kk
  • Vlastnictví:
    OV
  • Podlaží:
    3
  • Podlahová plocha:
    77 m2
  • Balkón:
    Ano
  • Sklep:
    15 m2
  • Stav objektu:
    Velmi dobrý
  • Umístění objektu:
    Klidná část
  • Topeni:
    ústřední dálkové
  • Odpad:
    kanalizace
  • Energetická náročnost:
    G - Mimořádne nehospodárná
  • Nabídky v okolí:
  • Informace o obci:
    Obec Praha má 1257158 obyvatel, z toho 889974 v produktivním věku.
    V obci se nachází pošta.
    V obci se nachází škola, popř. školka.
    V obci se nachází zdravotní zařízení.
    V obci je rozvod kanalizace.
    V obci je rozvod městské vody.
    V obci je rozvod plynu.

Podobné nabídky v okolí

Lokalita: V podhájí 1186, Praha, Česká republika V podhájí 1186, Praha