Pronájem bytu 3+kk, 77 m2 - U uhříněveské obory, Praha 22, Praha (již není v nabídce)
Cena:
24 000 Kč/měsíc
Stav:archiv
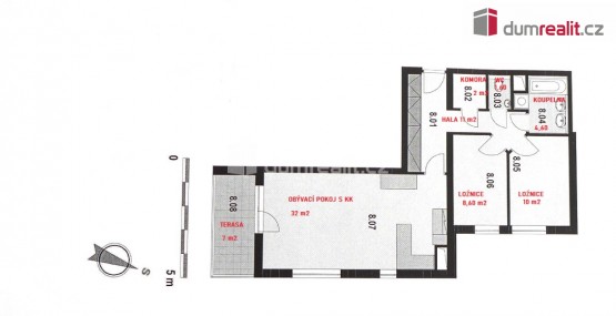
3+kk, 77 m2, cihlová, OV, 2. podlaží
Popis:
+ poplatky, + vratná kauce, + provize RK. Nabízíme vám pronájem velice hezkého bytu 3+kk o výměře 70 m² s terasou 7m² a garážovým stáním v suterénu téhož objektu, 2. NP (druh...é nadzemní patro) novostavby včetně výtahu, klidné místo s vynikající dostupností centra Prahy, Praha 10 - Uhříněves, ulice U uhříněveské obory.
Byt s krásně sladěným interiérem působí příjemným útulným dojmem. Dominantou bytu je vzdušný obývací pokoj se vstupem na prostornou slunnou terasu, která díky výhledu do husté zeleně skýtá naprosté soukromí. Prostor obývacího pokoje je rozdělen na část kuchyňskou s kuchyní plně vybavenou spotřebiči (sklokeramická varná deska, digestoř, el. trouba, myčka nádobí, lednice), část jídelní a odpočinkovou.
Součástí bytu jsou dále 2 menší ložnice, hala, velká koupelna, toaleta zvlášť a praktická komora.
Úložné prostory v bytě řeší velké vestavné skříně v hale a komora s regály, v dětském pokoji je instalován vestavný nábytek, v jídelní části obýváku zůstává jídelní stůl se židlemi, v koupelně pračka. Majitelé si odvezou postel z ložnice a sedačku z obýváku. Byt bude čistě vymalován.
Dlažby, obklady, sanita, plovoucí podlahy, interiérové dveře, vestavné vybavení, osvětlení bytu, . . . vše v perfektním stavu. Vytápění a ohřev vody dálkově pro celý objekt.
V domě je k dispozici kolárna.
Menší cihlový dům obklopený zelení, parky a zahrádkami se nachází směrem od Prahy hned na okraji Uhříněvse, takže má vynikající dostupnost do centra Prahy jak autem, tak MHD - BUS na metro A, B, C a vlak směr Vršovice a hl. nádraží jede ve špičce každých 20 minut a pohodlná jízda vlakem do centra Prahy trvá též 20 minut. Vlaková stanice i BUS vzdáleny 7 minut chůze od domu. V pražské Uhříněvsi naleznete veškerou infrastrukturu - obchody, lékaře, ZŠ, MŠ, sportoviště, restaurace i kavárny, . . . vše v pěší dostupnosti.
Byt bude připraven k nastěhování od 1. 8. 2024, určeno k dlouhodobému pronájmu, vhodné pro rodinu či dvojici, podmínkou nekuřáci, bez zvířat.
Nájemné včetně garáže 24. 000, - Kč/měs. , poplatky dle počtu osob, elektřina převedena na nájemce, vratná kauce 2 nájmy, provize RK ve výši 1 nájmu bez poplatků.
Velmi doporučuji. Ev. číslo: 647795. Energetický štítek: C
- Vložení inzerátu:
2.7.2024
- Kód:
3819286
- Typ nemovitosti:
Byt
- Typ budovy:
Cihlová
- Dispozice:
3+kk
- Vlastnictví:
OV
- Podlaží:
2
- Podlahová plocha:
77 m2
- Terasa:
Ano
- Stav objektu:
Novostavba
- Energetická náročnost:
C - Úsporná
- Nabídky v okolí:
Lokalita:
U uhříněveské obory , Praha 22, Praha, Česká republika
U uhříněveské obory, Praha 22, Praha