• Sledovat cenu
  •  

Zasílání upozornění emailem:

Pronájem bytu 3+kk, 68 m2 - Brno, okr. Brno-město (již není v nabídce)

Cena: 18 000 Kč/měsíc
Stav:archiv
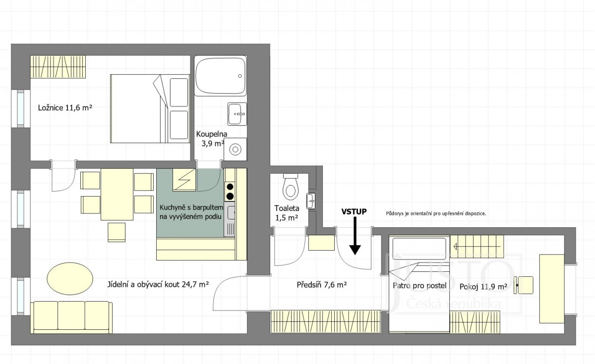
3+kk, 68 m2, cihlová, OV, 2. podlaží
Popis: V zastoupení majitele Vám nabízíme k pronájmu byt o dispozicích 3+kk s klasickým sklepem 5 m².

Byt se nachází v původní zástavbě, díky čemuž jsou v bytě vysoké stropy. Do byt...u se vchází do předsíně se vestavěnými skříněmi a úložnými prostory. Z předsíně je vstup na samostatnou toaletu, dále se dá projít do samostatného pokoje, který má díky vysokému stropu vytvořenou vyvýšenou konstrukci na spaní. Z předsíně se pak dá projít do velkého průchozího pokoje , kde je kuchyňská linka na vyvýšeném podiu a vstup do koupelny s vanou a do druhého samostatného pokoje.

Plná občanská vybavenost je na této adrese samozřejmostí, do centra města je to doslova kousek a do Lužáneckého parku ještě blíže.

Dlouhodobý pronájem je vhodný pro pár či rodinu.

Rezervujte si včas termín Vaší prohlídky. Prohlídkový den se koná ve čtvrtek 19. 1. 2023 od 16: 00 hodin.

Pronajímatel si vyhrazuje právo vybrat nájemce na základě pronajímatelem zvolených kritérií.
  • Vložení inzerátu:
    5.12.2022
  • Kód:
    3404910
  • K dispozici od:
    1.2.2023
  • Typ nemovitosti:
    Byt
  • Typ budovy:
    Cihlová
  • Dispozice:
    3+kk
  • Vlastnictví:
    OV
  • Podlaží:
    2
  • Podlahová plocha:
    68 m2
  • Sklep:
    5 m2
  • Stav objektu:
    Dobrý
  • Umístění objektu:
    Centrum
  • Telekomunikace:
    Internet
  • Energetická náročnost:
    G - Mimořádne nehospodárná
  • Nabídky v okolí:
  • Informace o obci:
    Obec Brno má 371371 obyvatel, z toho 256490 v produktivním věku.
    V obci se nachází pošta.
    V obci se nachází škola, popř. školka.
    V obci se nachází zdravotní zařízení.
    V obci je rozvod kanalizace.
    V obci je rozvod městské vody.
    V obci je rozvod plynu.

Podobné nabídky v okolí

Lokalita: Brno, okres Brno-město, Česká republika Brno, okr. Brno-město, Jihomoravský kraj