• Sledovat cenu
  •  

Zasílání upozornění emailem:

Pronájem bytu 3+kk, 62 m2 - Křižíkova, Benešov

Cena: 15 000 Kč/měsíc
Stav:Volný
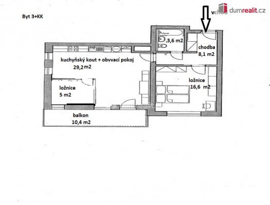
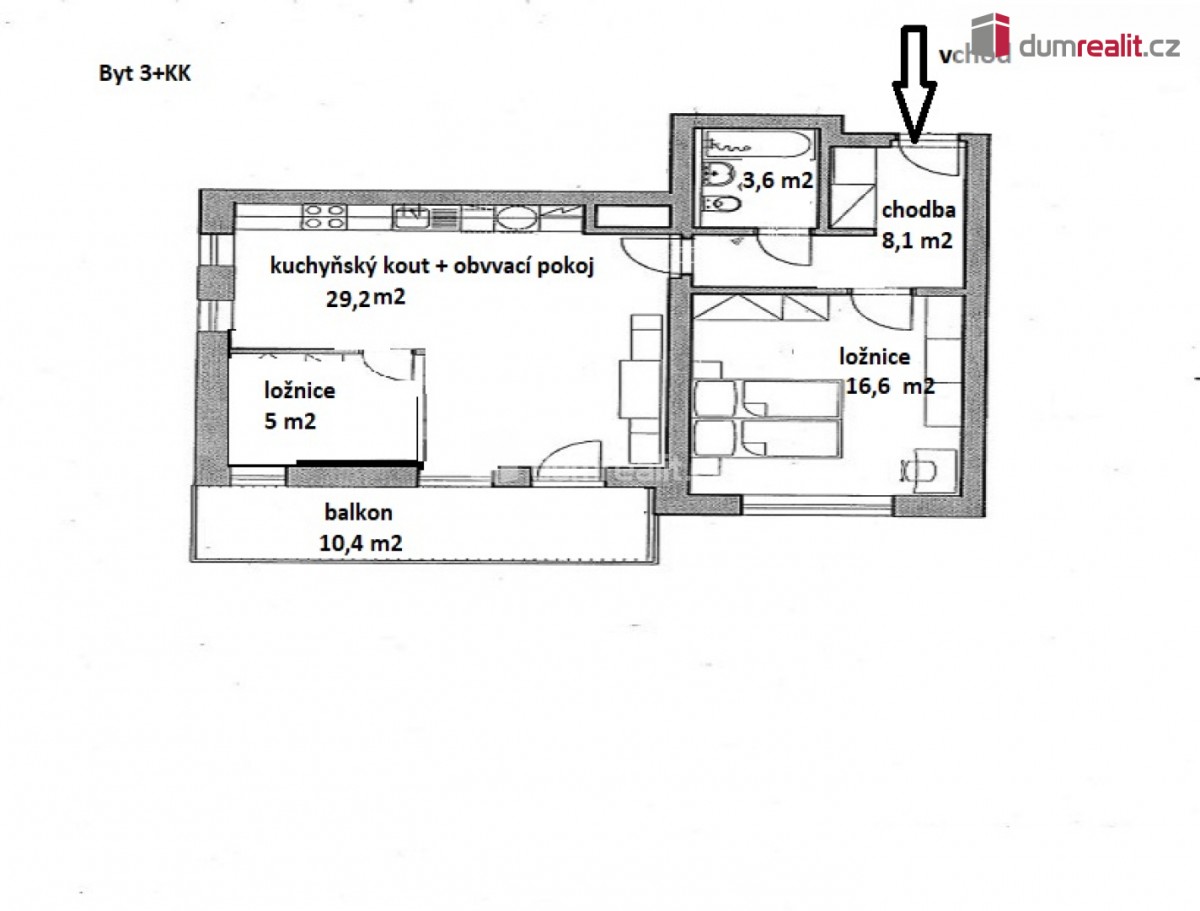
3+kk, 62 m2, cihlová, OV, 2. podlaží
Popis: +popl. 4213 Kč, cena měsíčního pronájmu nezahrnuje poplatky za užívání bytu (vodné, teplo, energie). Dumrealit. cz Vám nabízí pronájem bytu 3 + KK, 62 m² +10 m² balkón, v ul. Křižíkova, v Benešově. Byt. jednotka se ...nachází v cihlovém domě z r. 20210, v 2. NP (druhé nadzemní patro). Dispozice: ze vstupní chodby je samostatný vstup do ložnice s vestavěnou skříní, koupelny osazené vanou, umyvadlem a sociální zařízení WC, dále do obývacího pokoje s kuchyňským koutem se spotřebiči (el. varná deska, el. trouba, digestoř). Z této centrální části bytu je vstup do maličké ložnice a na balkón. Součástí pronájmu je koje (cca 2 m²) a nekryté parkovací stání pro jeden automobil před domem. Měsíční nájemné činí15. 000 Kč + 4. 213 Kč poplatky. Zálohy na spotřebu elektrické energie si nájemce převede u dodavatele na sebe. Vratná kauce činí 30. 000 Kč. Při podpisu nájemní smlouvy je třeba uhradit odměnu RK ve výši jednoho nájemného. Byt bude připravený k pronájmu od 2/2026. Lokalita je klidná, v okolí bytové domy, 10 min. pěší chůze na nádraží BUS, vlak. Benešov poskytuje plnou občanskou vybavenost. Pro více informací, volejte na uvedené telefonní číslo. Ráda Vám byt osobně představím. Ev. číslo: 650275. Energetický štítek: E (109 kWh/m2/rok).
  • Vložení inzerátu:
    7.1.2026
  • Kód:
    4053172
  • Typ nemovitosti:
    Byt
  • Typ budovy:
    Cihlová
  • Dispozice:
    3+kk
  • Vlastnictví:
    OV
  • Podlaží:
    2
  • Podlahová plocha:
    62 m2
  • Balkón:
    Ano
  • Sklep:
    Ano
  • Stav objektu:
    Dobrý
  • Energetická náročnost:
    E - Nehospodárná
  • Ukazatel náročnosti:
    109 kWh/m2
  • Nabídky v okolí:
  • Informace o obci:
    Obec Benešov má 16343 obyvatel, z toho 11706 v produktivním věku.
    V obci se nachází pošta.
    V obci se nachází škola, popř. školka.
    V obci se nachází zdravotní zařízení.
    V obci je rozvod kanalizace.
    V obci je rozvod městské vody.
    V obci je rozvod plynu.
Lokalita: Křižíkova , Benešov, okres Benešov, Česká republika Křižíkova, Benešov

Kontakt

Martina Kavková, MBA
Objednání prohlídky a více informací


Podobné nabídky v okolí


Volná pracovní místa ExpertPrace.cz
  • Objednání prohlídky a více informací
  •  
  • Poslat na e-mail
  •  

Zasílání odkazu na realitu emailem: