• Sledovat cenu
  •  

Zasílání upozornění emailem:

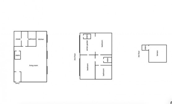
Pronájem bytu 3+kk, 137 m2 - Mánesova, Praha 2, Vinohrady, Praha (již není v nabídce)

Cena: 44 000 Kč/měsíc
Stav:archiv
3+kk, 137 m2, cihlová, OV, 7. podlaží
Popis: Velice luxusní mezonetový byt na Vinohradech, spodní část bytu je velmi prostorná, kuchyňský kout, hodně světla. V každém patře luxusní koupelna. V horním patře zimní zahrada se vstupem na střešní terasu s výhledem na Pr...ahu a výřivou vyhřívanou vanou. Byt je zabezpečen jak bezpečnostními dveřmi, tak bezp. zař. s připojením na PCO. Dům má recepci, kamerový systém. Garážové stání za příplatek - 3 podzemní patra garáží přístupná výtahem. V okolí domu je klid, v bytě naprostý. Dopravní spojení výborné - blízko jak metro trasy C (Muzeum) tak A (Jiřího z Poděbrad) a tramvaj. V okolí velmi dobré restaurace.

Podobné nabídky v okolí

Lokalita: Mánesova , Praha 2, Vinohrady, Praha, Česká republika Mánesova, Praha 2, Vinohrady, Praha