Pronájem bytu 3+1, 85 m2 - Živcová 1157, Praha 5, Radotín, Praha (již není v nabídce)
Cena:
21 000 Kč/měsíc
Stav:archiv
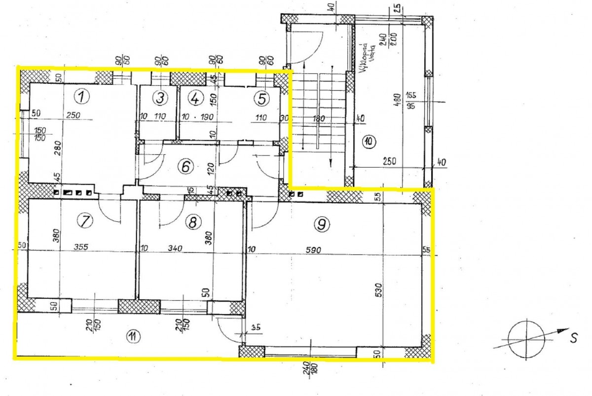
3+1, 85 m2, cihlová, OV, 3. podlaží
Popis:
Pronájem prostorného bytu o dispozici 3+1 cca 85 m2, s velkým balkónem a moc hezkým výhledem do údolí na soutok Berounky s Vltavou, v ulici Živcová v Radotíně. Byt je sit...uován ve druhém patře velkého třípatrového viladomu, kdy na každém patře je samostatný byt a je připraven k nastěhování nového nájemníka. Dům má energetickou náročnost třídy D.
Cena je stanovena bez záloh na služby, topení a vodu a záloh na spotřebu elektrické energie, které činí 7. 500, - Kč měsíčně.
Byt je k dispozici pouze konečnému nájemci na dobu min. 1 roku s možností prodloužení. Kauce činí 28. 500, - Kč, nájemné je hrazeno předem do 15. dne měsíce na měsíc následující.
- Vložení inzerátu:
17.12.2023
- Kód:
AR109
- Typ nemovitosti:
Byt
- Typ budovy:
Cihlová
- Dispozice:
3+1
- Vlastnictví:
OV
- Podlaží:
3
- Podlahová plocha:
85 m2
- Balkón:
Ano
- Stav objektu:
Velmi dobrý
- Bezbariérový byt:
Ano
- Telekomunikace:
Telefon, Internet, Kabelová televize
- Voda:
dálkový vodovod
- Elektřina:
230 V
- Doprava:
silnice, dálnice, MHD, autobus, vlak
- Topeni:
ústřední plynové
- Plyn:
plynovod
- Odpad:
kanalizace
- Bezbariérový přístup:
Ano
- Energetická náročnost:
D - Méne úsporná
- Nabídky v okolí: