Pronájem bytu 3+1, 83 m2 - Zárubova, Praha 12, Praha
Cena:
28 900 Kč/měsíc
Stav:Volný
3+1, 83 m2, panelová, OV, 7. podlaží
Popis:
+popl. 4900 Kč, el. zálohy 1000 Kč. 3D virtuální prohlídka bytu zde: https: //1url. cz/duOe1
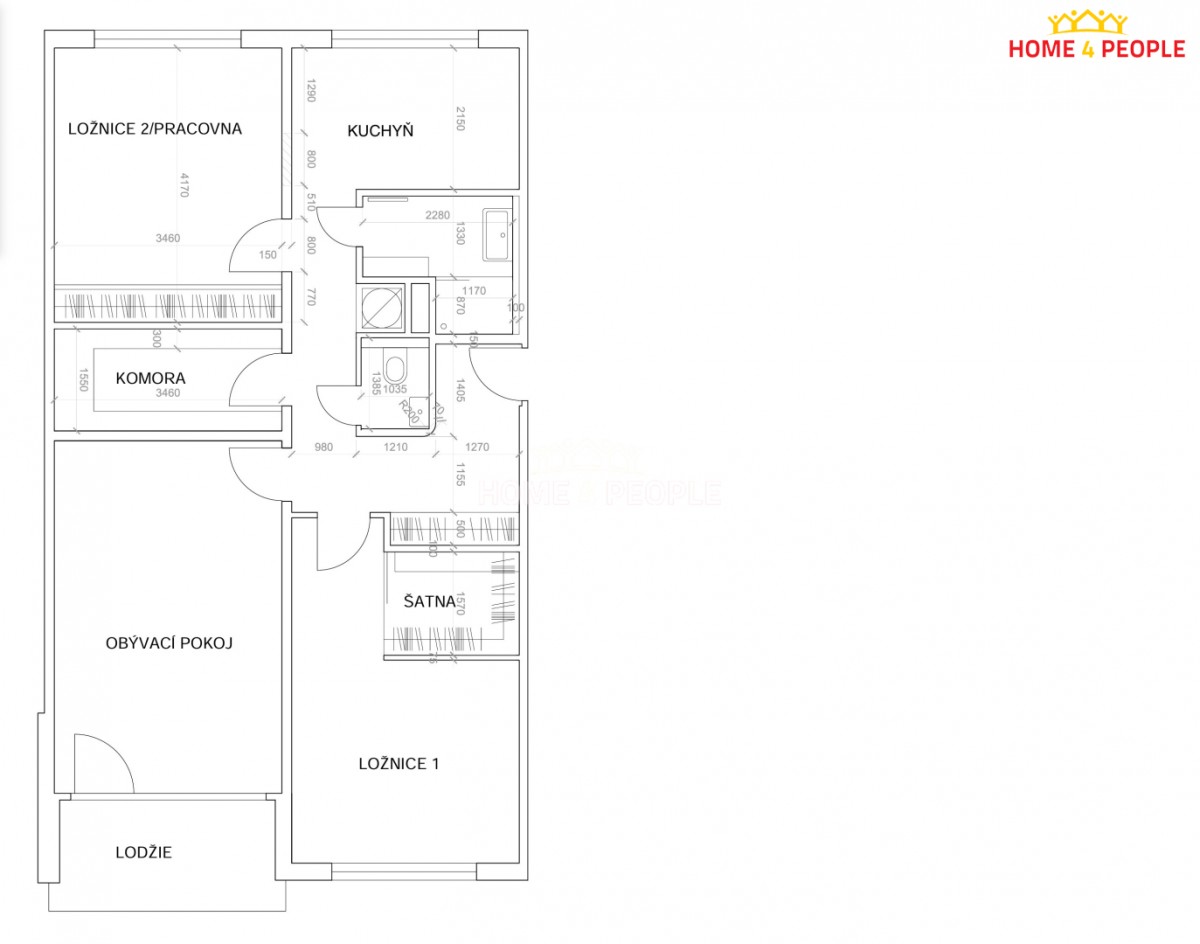
Zprostředkujeme Vám pronájem luxusního, nadstandardně zařízeného bytu 3+1 s lodžií..., o velikosti 83 m² po kompletní rekonstrukci v ul. Zárubova, Praha 12 - Kamýk. Byt je navíc bezbariérový, umístěný v 7. nadzemním patře (z celkových 8) skvěle udržovaného bytového domu včetně výtahu. Díky své poloze ve vyšším patře poskytuje nádherný výhled, soukromí a dechberoucí výhledy do okolí a na Lhotecký les.
Bydlení kombinuje vysoký komfort a kvalitu v moderním designu a klidné prostředí zeleně s veškerou občanskou vybaveností na dosah. Výborná dopravní dostupnost - zastávka MHD přímo u domu (na Kačerov 10 minut, Smíchov do 20 minut).
Byt je vhodný pro jednotlivce, pár nebo menší rodinu, kteří ocení kvalitní designové bydlení, velkoryse prostorné místnosti a nadbytek úložného prostoru, který je zde efektivně vyřešen.
Cena měsíčního pronájmu činí 28. 900 Kč, zálohy na služby 4. 900 Kč, vratná kauce, provize RK. K dispozici ihned k nastěhování.
ELEGANTNÍ DISPOZICE:
• obývací pokoj s lodžií orientovanou na západ, ideální pro večerní posezení při západu slunce, lodžíe pro větší komfort vybavena navíc ještě markýzou
• hlavní ložnice s vlastní walk - in šatnou pro maximální komfort
• druhá ložnice/pracovna s orientací na severovýchod – ideální pro dětský pokoj, druhou ložnici nebo home - office
• samostatná kompletně vybavená kuchyně
• koupelna s prostorným sprchovým koutem a podlahovým vytápěním
• samostatné sociální zařízení WC
• mimořádně prostorná komora
NADSTANDARTNÍ PROV (osobní vlastnictví)EDENÍ:
• prémiové materiály – odhlučněné dveře Sapeli, sanita Villeroy & Boch, armatury Grohe
• lakovaná kuchyňská linka s vestavnými spotřebiči Whirlpool
• komfortní koupelna s podlahovým topením a velkorysým sprchovým koutem
• samostatné sociální zařízení WC
• dostatek úložných prostor včetně komory, vestavěných skříní a walk - in šatny
• moderní technické zázemí – k dispozici přípojka optického internetové připojeníu 1000 Mb/s a klimatizace
LOKALITA:
Byt se nachází v oblíbené zelené části Prahy. Lhotecký les je vzdálen jen pár kroků a zároveň máte rychlé spojení do centra – zastávka MHD přímo u domu (Kačerov do 10 minut, Smíchov do 20 minut). V okolí najdete veškerou občanskou vybavenost – školy, školky, mezinárodní školu Prague British International School, obchody, obchodní centrum, restaurace i sportovní areály. Oblíbené výletní místo Modřanská rokle je vzdálené jen 2 km. V dojezdové vzdálenosti na Libuši je také oblíbená tržnice SAPA.
DALŠÍ BENEFITY:
• klidné bydlení v zeleni s možností pohodlného parkování bez modrých parkovacích zón
• dům po rekonstrukci, společné prostory monitorovány bezpečnostním kamerovým systémem 24/7
• zabezpečená kočárkárna a kolárna k dispozici v suterénu.
Pro více informací a domluvení prohlídky, kontaktujte prosím realitní makléřku. Ev. číslo: 32143. Energetický štítek: C
- Vložení inzerátu:
6.4.2026
- Kód:
4194685
- Typ nemovitosti:
Byt
- Typ budovy:
Panelová
- Dispozice:
3+1
- Vlastnictví:
OV
- Podlaží:
7
- Podlahová plocha:
83 m2
- Lodžie:
Ano
- Sklep:
Ano
- Stav objektu:
Po rekonstrukci
- Energetická náročnost:
C - Úsporná
- Nabídky v okolí:
Lokalita:
Zárubova , Praha 12, Praha, Česká republika
Zárubova, Praha 12, Praha