• Sledovat cenu
  •  

Zasílání upozornění emailem:

Pronájem bytu 3+1, 80 m2 - V tůních 1769, Praha 2, Nové Město, Praha (již není v nabídce)

Cena: 20 000 Kč/měsíc
Stav:archiv
3+1, 80 m2, cihlová, OV, 3. podlaží
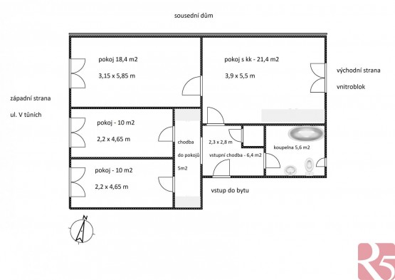
Popis: Dlouhodobý pronájem 3+1 80m2, P2 Nové Město, ul. V tůních, rekonstrukce, neprůchozí pokoje, metro, tramvaj, nezařízen.

Byt v klasickém cihlovém činžovním domě u ma...jitele, který preferuje dlouholetý pronájem.

Byt má vstupní chodbu s bezpečnostními dveřmi, dále vstupy do dvou samostatných ložnic, koupelny s vanou a toaletou. Dále prostorná kuchyň 21, 4m2 se vstupem do samostatného velkého pokoje 18, 4m2 .

Byt má výhodu ve třech samostatných pokojích, 18, 4, 10 a 10m2 a velké obytné kuchyni 21, 4m2. Vhodné jak pro rodinu, tak i pro spolubydlení.

Pronajímá se vybaven kuchyňskou linkou se sporákem, jinak bez nábytku.

Byt po rekonstrukci připraven ihned k pronájmu.
  • Vložení inzerátu:
    2.6.2022
  • Kód:
    R519004
  • Typ nemovitosti:
    Byt
  • Typ budovy:
    Cihlová
  • Dispozice:
    3+1
  • Vlastnictví:
    OV
  • Podlaží:
    3
  • Podlahová plocha:
    80 m2
  • Plocha parcely:
    80 m2
  • Stav objektu:
    Po rekonstrukci
  • Bezbariérový byt:
    Ano
  • Telekomunikace:
    Internet, Kabelová televize
  • Elektřina:
    230 V, 380 V
  • Doprava:
    silnice, dálnice, MHD, autobus, vlak
  • Topeni:
    ústřední plynové
  • Plyn:
    plynovod
  • Odpad:
    kanalizace
  • Komunikace:
    asfaltová
  • Bezbariérový přístup:
    Ano
  • Energetická náročnost:
    E - Nehospodárná
  • Ukazatel náročnosti:
    252 kWh/m2
  • Nabídky v okolí:

Podobné nabídky v okolí

Lokalita: V tůních 1769, Praha 2, Nové Město, Praha, Česká republika V tůních 1769, Praha 2, Nové Město, Praha