• Sledovat cenu
  •  

Zasílání upozornění emailem:

Pronájem bytu 3+1, 80 m2 - Československé armády 1982, Frýdek-Místek (již není v nabídce)

Cena: 17 990 Kč/měsíc
Stav:archiv
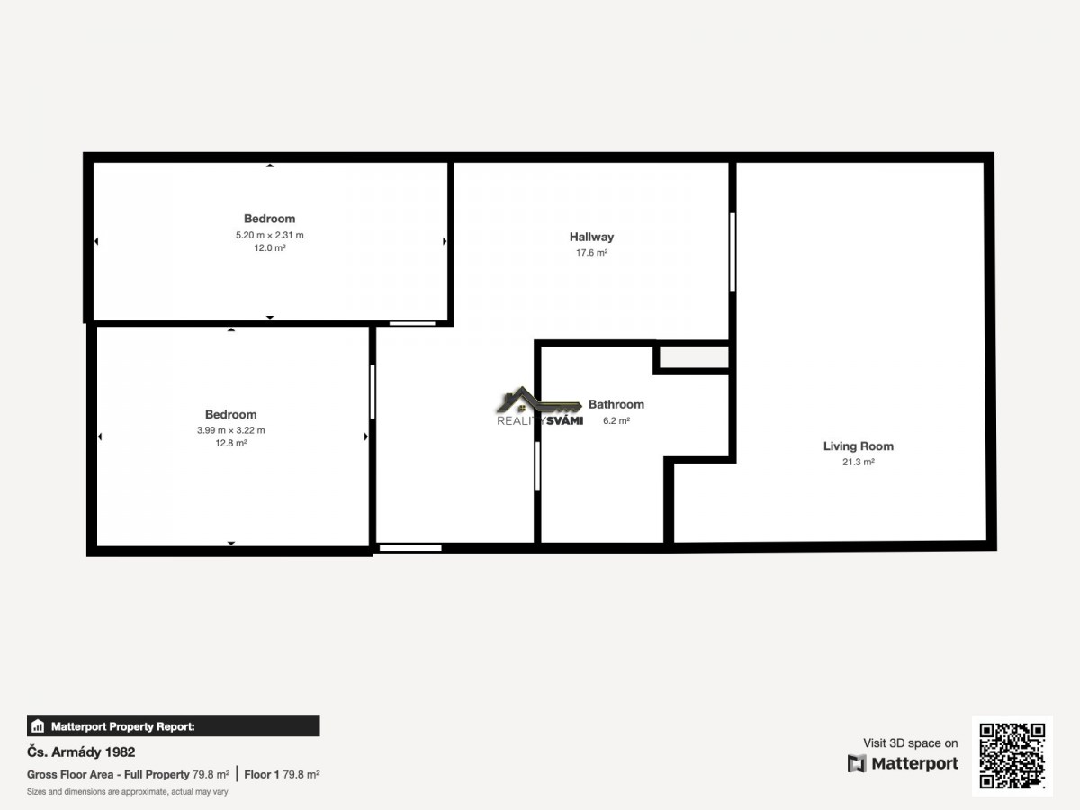
3+1, 80 m2, OV, 4. podlaží
Popis: Krásným místem pro život to u této nabídky jen začíná.

Vítejte na stránce nabídky pronájmu prostorného bytu 3+1 s velkým balkónem, umístěným v prvním patře bytového domu po revitali...zaci.

Byt je připraven pro své nové nájemníky a jako takový prošel v minulostí kompletní rekonstrukcí, při které bylo dbáno na funkčnost a vzhled. Prostor bytu nabídne 3 samostatné neprůchozí pokoje, větší chodbu, kuchyni se všemi potřebnými spotřebiči, jako je myčka nádobí, mikrovlnná trouba, nebo i ta horkovzdušná. Potěší i plynová varná deska. Dále koupelnou, kde je velkorysý prostor díky spojení s sociální zařízení WC a nechybí zde ani podlahové vytápění. Dominantou je velké zrcadlo a nechybí i prostorná vana.

No a co úložné prostory a vybavení?

Nechybí ani ty. Je zde umístěných několik skříní, manželská postel, nebo například jídelní stůl, či posezení na balkóně. Z elektrospotřebičů poté vše doplňují 2 televizory a v obývacím pokoji je na romantické zimní večery připraven funkční lihový krb.

A kde že tento světlý a prostorný byt nalezneme? Kousek od centra Místku a to znamená, že v okolí najdete veškerou občanskou vybavenost, ale i dopravní spojení. Školy a školky samosebou také.

Teď už jen chybí zavolat, nebo napsat a domluvit si prohlídku, ať můžete přednosti bytu vidět na vlastní oči. Ale spěchejte, byt je nachystán k bydlení a dlouho se v nabídce neohřeje.

Těším se na Vás u osobní prohlídky.
  • Vložení inzerátu:
    21.7.2025
  • Kód:
    00570
  • K dispozici od:
    0.0.0
  • Typ nemovitosti:
    Byt
  • Dispozice:
    3+1
  • Vlastnictví:
    OV
  • Podlaží:
    4
  • Podlahová plocha:
    80 m2
  • Balkón:
    Ano
  • Sklep:
    Ano
  • Stav objektu:
    Velmi dobrý
  • Umístění objektu:
    Centrum
  • Telekomunikace:
    , Kabelová televize, Kabelové rozvody
  • Voda:
    dálkový vodovod
  • Elektřina:
    230 V
  • Doprava:
    silnice, dálnice, MHD, autobus
  • Topeni:
    ústřední dálkové
  • Plyn:
    plynovod
  • Odpad:
    kanalizace
  • Energetická náročnost:
    B - Velmi úsporná
  • Podle vyhlášky:
    c. 78/2013 Sb.
  • Ukazatel náročnosti:
    79 kWh/m2
  • Nabídky v okolí:
  • Informace o obci:
    Obec Frýdek-Místek má 58200 obyvatel, z toho 41994 v produktivním věku.
    V obci se nachází pošta.
    V obci se nachází škola, popř. školka.
    V obci se nachází zdravotní zařízení.
    V obci je rozvod kanalizace.
    V obci je rozvod městské vody.
    V obci je rozvod plynu.

Podobné nabídky v okolí

Lokalita: Československé armády 1982, Frýdek-Místek, okres Frýdek-Místek, Česká republika Československé armády 1982, Frýdek-Místek