• Sledovat cenu
  •  

Zasílání upozornění emailem:

Pronájem bytu 3+1, 70 m2 - Blahoutova, Pardubice

Cena: 18 000 Kč/měsíc
Stav:Volný
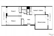
3+1, 70 m2, cihlová, OV, 4. podlaží
Popis: Nabízíme Vám pronájem bytu v oblíbené lokalitě sídliště Dubina, v jeho okrajové části v ulici Blahoutova.

Byt o dispozici 3+1 a velikosti 70 m2 s dvěma prostornými lodži...emi, z nichž jedna z nich je prosklená se nachází ve 4. NP (čtvrté nadzemní patro) zděného domu bez výtahu.

Z prostorné vstupní haly vejdeme do jednotlivých místností, pokoje jsou tedy neprůchozí. Byt je částečně vybavený - kuchyňská linka, trouba, lednice, šatní skříň v chodbě. Na podlaze jsou koberce.

Byt je nově čerstvě vymalovaný a je připraven k nastěhování.

V této oblíbené lokalitě je veškerá občanská vybavenost a dobrá dopravní dostupnost MHD do centra města.
  • Vložení inzerátu:
    6.3.2026
  • Kód:
    01219
  • K dispozici od:
    0.0.0
  • Typ nemovitosti:
    Byt
  • Typ budovy:
    Cihlová
  • Dispozice:
    3+1
  • Vlastnictví:
    OV
  • Podlaží:
    4
  • Podlahová plocha:
    70 m2
  • Lodžie:
    Ano
  • Stav objektu:
    Dobrý
  • Energetická náročnost:
    G - Mimořádne nehospodárná
  • Nabídky v okolí:
  • Informace o obci:
    Obec Pardubice má 90401 obyvatel, z toho 62260 v produktivním věku.
    V obci se nachází pošta.
    V obci se nachází škola, popř. školka.
    V obci se nachází zdravotní zařízení.
    V obci je rozvod kanalizace.
    V obci je rozvod městské vody.
    V obci je rozvod plynu.
Lokalita: Blahoutova , Pardubice, okres Pardubice, Česká republika Blahoutova, Pardubice



  • Objednání prohlídky a více informací
  •  
  • Poslat na e-mail
  •  

Zasílání odkazu na realitu emailem: