• Sledovat cenu
  •  

Zasílání upozornění emailem:

Pronájem bytu 3+1, 65 m2 - České Budějovice (již není v nabídce)

Cena: 14 500 Kč/měsíc
Stav:archiv
3+1, 65 m2, panelová, OV, 6. podlaží
Popis: Pokud hledáte místo k bydlení, ze kterého to budete mít velice blízko do centra města a zároveň do přírody, pak máme byt k pronájmu přímo pro vás!

Ve výhradním zastoupení majitelky vám nabízíme pronájem vybaveného bytu s d...ispozicí 3+1, v ulici L. M. Pařízka v Českých Budějovicích. Byt se nachází v 5. patře panelového domu včetně výtahu. Podívejte se na virtuální prohlídku celého bytu, kterou najdete u inzerátu (pokud se vám u inzerátu nezobrazuje, pošleme vám ji).

Byt s výměrou cca 65 m² je světlý a prostorný. K bytu dále patří sklep (cca 2 m²) a balkon (cca 3 m²), který je orientovaný na jih. Díky velkým pokojům je zde mnoho úložného prostoru.

K dispozici je případně také garáž (informace o ceně je uvedena v poznámce k ceně), která je zhruba 200 m od bytu u vlakového přejezdu v ulici Plavská.

Zastávky MHD máte v obou směrech jen pár desítek metrů od bytu. V docházkové vzdálenosti je i Poliklinika Jih, lékárna, škola a školka nebo nemocnice. Vzdušnou čarou to máte pouhý kilometr na Náměstí Přemysla Otakara II.

Asi po 5 minutách chůze jste na oblíbeném Lučním Jezu a na jedné z mnoha cyklostezek. Za stejnou dobu, pouze opačným směrem, se dostanete k Malši a na vyhledávaný Malý Jez (dětská hřiště, občerstvení, koupání, přístaviště atd. ).

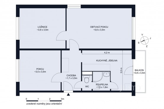
Ve fotogalerii u inzerátu je 2D orientační půdorys celého bytu.

Pokud máte zájem o více informací, nebo prohlídku, vyplňte formulář u inzerátu. Dostanete odpověď s veškerými informacemi do 20 minut na e - mail, který uvedete. Zkontrolujte si, prosím, i složky "Spam a "Nevyžádaná pošta". Občas se tam e - mail může zatoulat.
  • Vložení inzerátu:
    18.12.2024
  • Kód:
    3899645
  • K dispozici od:
    1.1.2025
  • Typ nemovitosti:
    Byt
  • Typ budovy:
    Panelová
  • Dispozice:
    3+1
  • Vlastnictví:
    OV
  • Podlaží:
    6
  • Podlahová plocha:
    65 m2
  • Balkón:
    3 m2
  • Sklep:
    2 m2
  • Stav objektu:
    Velmi dobrý
  • Umístění objektu:
    Klidná část
  • Voda:
    místní zdroj
  • Elektřina:
    230 V
  • Topeni:
    ústřední dálkové
  • Odpad:
    kanalizace
  • Energetická náročnost:
    D - Méne úsporná
  • Podle vyhlášky:
    c. 78/2013 Sb.
  • Ukazatel náročnosti:
    115 kWh/m2
  • Nabídky v okolí:
  • Informace o obci:
    Obec České Budějovice má 94754 obyvatel, z toho 66302 v produktivním věku.
    V obci se nachází pošta.
    V obci se nachází škola, popř. školka.
    V obci se nachází zdravotní zařízení.
    V obci je rozvod kanalizace.
    V obci je rozvod městské vody.
    V obci je rozvod plynu.

Podobné nabídky v okolí

Lokalita: České Budějovice, okres České Budějovice, Česká republika České Budějovice, Jihočeský kraj