Pronájem bytu 3+1, 55 m2 - Rumburská, Praha 9, Praha (již není v nabídce)
Cena:
22 500 Kč/měsíc
Stav:archiv
3+1, 55 m2, panelová, OV, 6. podlaží
Popis:
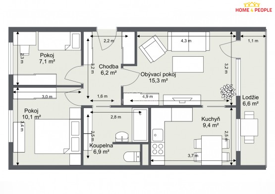
+ provize RK, elektřina (1000, - kč) a plyn (400, - kč) převod na nájemce, poplatky (4200, - Kč). ve výhradním zastoupení majitele dlouhodobý byt 3+1 k pronájmu, o velkosti 55m²... + 6m² lodžie, v klidné a bezpečné lokalitě Prahy 9 - Střížkov, ulice Rumburská. Nemovitost se nachází v šestém patře panelového domu po rekonstrukci - výtah, zateplení. Byt tvoří předsíň s vestavěnými skříněmi, dva neprůchozí pokoje, obývací pokoj s vestavěnou skříní se vstupem na balkón. Kuchyň s jídelnou je vybavena jídelním stolem, lednicí, mikrovlnná trouba a plynovým sporákem. Koupelna s rohovou vanou, toaleta v koupelně oddělená. Byt je bez vybavení. Na podlaze je položena plovoucí podlaha. Vytápění ústřední. Okna jsou plastová. Naproti bytu se nachází komora. Bezproblémové parkování na ulici. Výborné dopravní spojení - u metra trasy C stanice Střížkov. Volný od ihned. Převod elektrické energie a plynu na nájemce. Byt je momentálně čerstvě vymalován. Veškeré občanské vybavení v místě, MŠ, ZŠ, kadeřnictví, pošta, lékař, obchody, banka i supermarket. Vřele doporučujeme. Pro více informací neváhejte kontaktovat makléře. Ev. číslo: 31664. Energetický štítek: C (1 kWh/m2/rok).
- Vložení inzerátu:
10.2.2025
- Kód:
3941637
- Typ nemovitosti:
Byt
- Typ budovy:
Panelová
- Dispozice:
3+1
- Vlastnictví:
OV
- Podlaží:
6
- Podlahová plocha:
55 m2
- Balkón:
Ano
- Stav objektu:
Velmi dobrý
- Energetická náročnost:
C - Úsporná
- Ukazatel náročnosti:
1 kWh/m2
- Nabídky v okolí:
Lokalita:
Rumburská , Praha 9, Praha, Česká republika
Rumburská, Praha 9, Praha