• Sledovat cenu
  •  

Zasílání upozornění emailem:

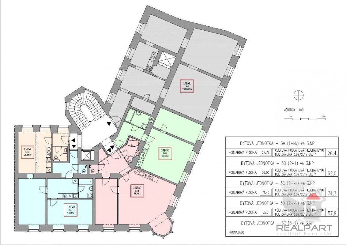
Pronájem bytu 3+1, 125 m2 - Kobližná, Brno, okr. Brno-město (již není v nabídce)

Cena: 14 900 Kč/měsíc
Stav:archiv
3+1, 125 m2, cihlová, OV, 2. podlaží
Popis: Nabízíme k pronájmu byt 3+1, označení bytu 3E, o rozloze 124, 78 m2, ve 2. patře domu na pomezí ulice Kobližná a Novobranská v Brně. Všechny byty v tomto domě byly v ro...ce 2016 kompletně zrekonstruované, vyjma bytu 3E, který dlouhodobě užívají stávající nájemci. V tomto bytě byla v roce 2016 kompletně zrekonstruovaná koupelna včetně nové dlažby a obkladů, nové vany, umyvadla se skříňkou a zrcadlem, závěsným sociální zařízení WC a žebříkovým radiátorem. Dále byl v roce 2016 do bytu nainstalován nový úsporný kombinovaný plynový kotel Baxi, který slouží k vytápění bytu a ohřevu teplé užitkové vody. Byt má místnost předsíně, ze které se dále vstupuje do haly, ze které je vstup do prvního z pokojů, do koupelny, do kuchyně a do místnosti komory. Z kuchyně se dále vstupuje do třetího z pokojů a z tohoto dále do druhého z pokojů. Dva větší pokoje jsou situované s okny do ulice Novobranská a zbývající místnosti s okny do dvora. V místnosti kuchyně je nainstalovaná stávající kuchyňská linka včetně stávajících spotřebičů, tedy včetně myčky nádobí, plynového sporáku a digestoře. V bytě je i stávající nábytek, z nichž některý je na míru. Stávající nájemce nabízí možnost přenechání tohoto nábytku bezúplatně novému nájemci.

Byt je osazen podružným vodoměrem měřícím náklady na vodné a stočné spotřebované v bytě. Na dodávku el. energie a plynu k vytápění a vaření má stávající nájemce uzavřenu smlouvu s dodavateli těchto energií, která bude přepsána na nového nájemce, jako nového odběratele. Možnost pronájmu nově vybudovaného sklepu v 1. PP za nájemné 250, - Kč/měsíc. Byt bude připravený k pronájmu na dobu nájmu s účinností od 1. 5. 2021.

- měsíční nájemné 14. 900, - Kč
- měsíční zálohy za služby a vodné a stočné (vyjma el. energie a plynu spotřebovaného nájemce v bytě, který hradí přímo dodavatelům) 550, - Kč/osoba včetně DPH
  • Vložení inzerátu:
    6.4.2021
  • Kód:
    0316
  • Typ nemovitosti:
    Byt
  • Typ budovy:
    Cihlová
  • Dispozice:
    3+1
  • Vlastnictví:
    OV
  • Podlaží:
    2
  • Podlahová plocha:
    125 m2
  • Stav objektu:
    Velmi dobrý
  • Umístění objektu:
    Centrum
  • Voda:
    dálkový vodovod
  • Elektřina:
    230 V
  • Doprava:
    silnice, dálnice, MHD, autobus, vlak
  • Plyn:
    plynovod
  • Odpad:
    kanalizace
  • Energetická náročnost:
    G - Mimořádne nehospodárná
  • Nabídky v okolí:
  • Informace o obci:
    Obec Brno má 371371 obyvatel, z toho 256490 v produktivním věku.
    V obci se nachází pošta.
    V obci se nachází škola, popř. školka.
    V obci se nachází zdravotní zařízení.
    V obci je rozvod kanalizace.
    V obci je rozvod městské vody.
    V obci je rozvod plynu.

Podobné nabídky v okolí

Lokalita: Kobližná , Brno, okres Brno-město, Česká republika Kobližná, Brno, okr. Brno-město