• Sledovat cenu
  •  

Zasílání upozornění emailem:

Pronájem bytu 3+1, 122 m2 - Dukelské nám. 30, Hustopeče, okr. Břeclav (již není v nabídce)

Cena: 17 000 Kč/měsíc
Stav:archiv
3+1, 122 m2, cihlová, OV, 3. podlaží
Popis: Hledáte k pronájmu prostorný byt v Hustopečích?

Ve výhradním zastoupení majitelů Vám nabízíme pronájem bytové jednotky o velikosti 3+1, jež se nachází v podkroví penzionu Pod Radnicí... na Dukelském náměstí v Hustopečích.

Byt je plně klimatizovaný a je do něj přístup přes vnitřní schodiště nebo výtahem ze strany od náměstí. Má dva balkóny, jeden směrem k náměstí a druhý směrem do vnitrobloku.

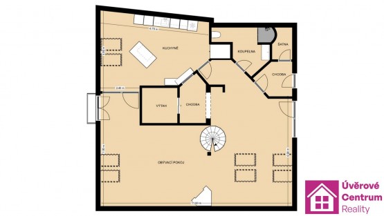
Dispozice bytu: předsíň, šatna, koupelna s toaletou, kuchyň, pokoj, pokoj, jídelna a pokojem v podkroví (viz. půdorys ve fotogalerii). Celková obytná plocha = 122 m2.

Podmínkou pronájmu bytu je zajištění obsluhy recepce penzionu Pod Radnicí. Obsluha recepce je placená služba. Foto recepce ve fotogalerii.

Zaujala Vás tato nabídka? Máte zájem o prohlídku? Vám vyhovující termín prohlídky (datum a čas) s kontakty na Vás (e - mail + tel. číslo) zasílejte na e - mail makléře, který Vás následně bude telefonicky kontaktovat.

Měsíční nájem 17. 000 Kč včetně energií. Kauce = 34. 000 Kč. Provize pro Realitního zprostředkovatele = 17. 000 Kč.
K předání klíčů od bytu je třeba 68. 000 Kč (měsíční nájemné, kauce a provize pro RK)

K nastěhování od 10/2024.
  • Vložení inzerátu:
    4.8.2024
  • Kód:
    00028
  • Typ nemovitosti:
    Byt
  • Typ budovy:
    Cihlová
  • Dispozice:
    3+1
  • Vlastnictví:
    OV
  • Podlaží:
    3
  • Podlahová plocha:
    122 m2
  • Plocha parcely:
    122 m2
  • Balkón:
    3 m2
  • Stav objektu:
    Velmi dobrý
  • Bezbariérový byt:
    Ano
  • Telekomunikace:
    Telefon, Internet, Kabelová televize
  • Voda:
    místní zdroj
  • Elektřina:
    230 V
  • Doprava:
    silnice, dálnice, autobus, vlak
  • Topeni:
    lokální plynové
  • Plyn:
    plynovod
  • Odpad:
    kanalizace
  • Komunikace:
    asfaltová
  • Zařízený:
    Ano
  • Bezbariérový přístup:
    Ano
  • Energetická náročnost:
    G - Mimořádne nehospodárná
  • Nabídky v okolí:
  • Informace o obci:
    Obec Hustopeče má 5962 obyvatel, z toho 4262 v produktivním věku.
    V obci se nachází pošta.
    V obci se nachází škola, popř. školka.
    V obci se nachází zdravotní zařízení.
    V obci je rozvod kanalizace.
    V obci je rozvod městské vody.
    V obci je rozvod plynu.

Podobné nabídky v okolí

Lokalita: Dukelské nám. 30, Hustopeče, okres Břeclav, Česká republika Dukelské nám. 30, Hustopeče, okr. Břeclav