• Sledovat cenu
  •  

Zasílání upozornění emailem:

Pronájem bytu 3+1, 100 m2 - U mlýna, Praha 4, Záběhlice, Praha (již není v nabídce)

Cena: 24 000 Kč/měsíc
Stav:archiv
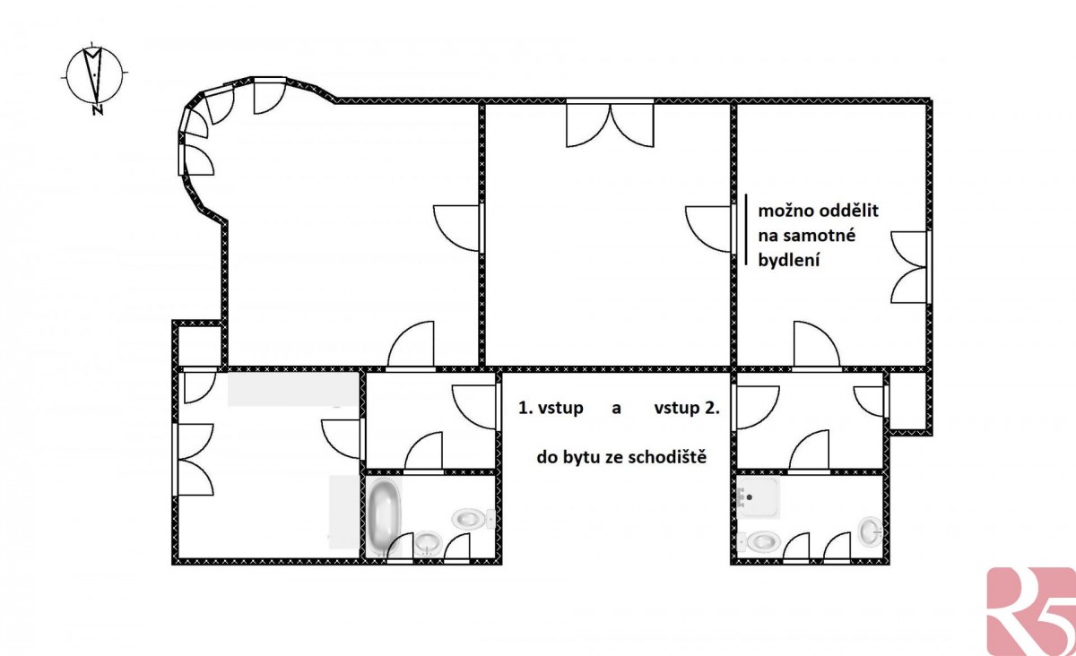
3+1, 100 m2, cihlová, OV, 3. podlaží
Popis: Pronájem dvougeneračního bytu 3+1, 100m2, P4 Záběhlice, ul. U mlýna

Nabízíme k pronájmu velký byt o dispozici 3+1 a rozloze 100...m2 v ulici U mlýna, Praha 4 - Záběhlice. Tento byt je ideální pro rodinu a díky dvěma samostatným vstupům a dvěma koupelnám je vhodný i jako dvougenerační bydlení.

Popis bytu
Dispozice: 3+1
Rozloha: 100m2
2 samostatné vstupy
2 samostatné koupelny
Nová kuchyňská linka s troubou a varnou deskou

Výhody
Klidný dům obklopený zelení
Ideální pro rodinu, možnost bydlení rodičů a dětí samostatně
Výborná dopravní dostupnost - tramvaj do centra kousek u domu
Byt je k nastěhování ihned

Pokud hledáte prostorné a klidné bydlení v Praze, tento byt je pro vás ideální volbou. Pro více informací a prohlídku nás neváhejte kontaktovat.

Podobné nabídky v okolí

Lokalita: U mlýna , Praha 4, Záběhlice, Praha, Česká republika U mlýna, Praha 4, Záběhlice, Praha