• Sledovat cenu
  •  

Zasílání upozornění emailem:

Pronájem bytu 2+kk, 79 m2 - Pospíšilova 281, Hradec Králové

Cena: 34 392 Kč/měsíc
Stav:Volný
2+kk, 79 m2, OV, 3. podlaží
Popis: LOFTOV (osobní vlastnictví)É STUDIO .
Designový prostor, moc hezký loft je možné pronajmout i jako kancelář, , obchod, kosmetický salón, tetovací studio, galerie atp. . . v multifunkčním domě Pilnáčkovy továrny v centr...u Hradce Králové.

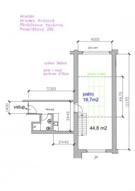
Sál s galerií je krásná velice vysoká místnost s vloženým patrem.
Sál 44, 8m2, galerie 18, 3m2, zázemí 3, 2m2, recepce 12, 30m2.

Situovaný ve 3 NP v moc hezkém multifunkčním domě včetně výtahu.
K pronájmu ihned, prohlídky možné po dohodě.

Nájem 34. 392, - CZK / měsíc + služby a energie na nájemce.
Kauce jeden měsíční nájem se službamí.
Provize jeden měsíční nájem.



  • Vložení inzerátu:
    2.3.2026
  • Kód:
    Pospisilova Byt
  • Typ nemovitosti:
    Byt
  • Dispozice:
    2+kk
  • Vlastnictví:
    OV
  • Podlaží:
    3
  • Podlahová plocha:
    79 m2
  • Stav objektu:
    Po rekonstrukci
  • Bezbariérový byt:
    Ano
  • Bezbariérový přístup:
    Ano
  • Nabídky v okolí:
  • Informace o obci:
    Obec Hradec Králové má 94318 obyvatel, z toho 63900 v produktivním věku.
    V obci se nachází pošta.
    V obci se nachází škola, popř. školka.
    V obci se nachází zdravotní zařízení.
    V obci je rozvod kanalizace.
    V obci je rozvod městské vody.
    V obci je rozvod plynu.
Lokalita: Pospíšilova 281, Hradec Králové, okres Hradec Králové, Česká republika Pospíšilova 281, Hradec Králové

Kontakt

Lucie Young



  • Objednání prohlídky a více informací
  •  
  • Poslat na e-mail
  •  

Zasílání odkazu na realitu emailem: