• Sledovat cenu
  •  

Zasílání upozornění emailem:

Pronájem bytu 2+kk, 72 m2 - Na Rybníčku, Plzeň, okr. Plzeň-město (již není v nabídce)

Cena: 16 500 Kč/měsíc
Stav:archiv
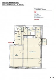
2+kk, 72 m2, cihlová, OV, 2. podlaží
Popis: AKČNÍ NABÍDKA PRO POSLEDNÍ VOLNÝ BYT: Pro nového nájemce je připraven atraktivní bonus v podobě časově omezeného sníženého nájmu. Základní cena nájmu je 18. 000 Kč za měsíc. Bonus v podobě časově omezeného sníženého nájmu ...je 16. 500 Kč za měsíc v roce 2024.
Jaké jsou Vaše sny o bydlení. Hledáte atraktivní a moderní byt s možností odpočinku na balkóně a docházkové vzdálenosti do lesa či ke sportovištím? Je Vaší prioritou klidné místo, přejete si zajištěné parkovací místo? V takovém případě je tato nabídka určená přímo pro Vás.

Předmětem pronájmu je moderní, nově vybudovaný byt s dispozicí 2+kk o výměře cca 72 m2 s balkonem cca 2, 3 m2 domu kolaudovaného na byty v roce 2024. Byt se nachází v ulici Na Rybníčku, v klidné části Plzně na Doubravce.

Ke kvalitě bydlení v tomto nabízeném bytě přispívá zajímavá architektura, náročný design a funkční řešení. Kromě vnějšího výrazu dům nabízí zajímavé řešení dispozic bytů a společných prostorů.

Nabízený byt je ve druhém patře s výhledem do zeleně.
V obývacím pokoji, hlavní obytné místnosti o velikosti cca 36 m2, je kuchyňská linka vybavená vestavěnými spotřebiči jako je varná indukční deska, elektrická trouba a digestoř. Výhodou je komora navazující na kuchyňskou linku, kde je možné skladovat vše potřebné. V obývacím pokoji jsou dvě okna, díky kterým je pokoj dostatečně prosvětlený a vstup na balkón cca 2, 3 m2 s výhledem na do zeleně, kde je možné trávit volný čas, relaxovat a odpočívat.
Do ložnice i obývacího pokoje se vstupuje samostatně, pokoje nejsou průchozí a zajišťují tak potřebnou míru soukromí. V koupelně se sprchovým koutem a umyvadlem je osvětlené zrcadlo, na stěně je umístěn topný žebřík a prostor pro umístění pračky. Toaleta je samostatně. V celém bytě jsou svítidla.

Samozřejmostí je možnost připojení na internetové připojení a rozvod TV. Velkoplošná francouzská okna lze zastínit elektrickými venkovními žaluziemi. V ceně nájmu je také venkovní parkovací stání umístěné na vlastním pozemku.

Standardem bytu je vytápění a ohřev vody centrální plynovou kotelnou, kvalitní zařizovací předměty včetně kuchyňské linky se spotřebiči, internetové připojení, rozvod TV apod. Okna jsou plastová, podlahy kryjí vinylové podlahy.
Nadstandardem je podlahové vytápění v celém bytě, klimatizační jednotky v obytných místnostech a elektrické předokenní žaluzie, zajišťující soukromí a regulaci světla v dané místnosti. Díky orientaci na jižní stranu je v tomto bytě dostatek světla. Tento byt Vám zpříjemní život a utvoří domov. Nezanedbatelnou výhodou je možnost parkování.

Umíte si představit skloubit historii a moderní bydlení? Dům, ve kterém byly vybudovány nové byty byl postaven pravděpodobně již ve 13 stoletím jako panský dvůr a významná stavba tamního pána.
Současný vlastník proměnil dům na moderní bytový dům, na který bude navazovat park. Připravuje se revitalizace rybníku přiléhajícího k domu a záměrem je vybudovat zde oázu klidu a zeleně.

V těsné blízkosti jsou kulturní a restaurační zařízení, lékař, park, sportoviště, pošta, obchody, škola, MHD atd. Jedná se o lokalitu v Plzni, která nabízím nájemcům bytu moc hezké bydlení.

Pokud hledáte bydlení v moderním bytě s dobrou občanskou dostupností do města a zároveň na dosah ruky přírodě je tahle nabídka jako stvořená pro Vás.
  • Vložení inzerátu:
    12.2.2024
  • Kód:
    243807
  • K dispozici od:
    0.0.0
  • Typ nemovitosti:
    Byt
  • Typ budovy:
    Cihlová
  • Dispozice:
    2+kk
  • Vlastnictví:
    OV
  • Podlaží:
    2
  • Podlahová plocha:
    72 m2
  • Balkón:
    2 m2
  • Stav objektu:
    Velmi dobrý
  • Rok výstavby:
    2024
  • Rok kolaudace:
    2024
  • Rok rekonstrukce:
    2024
  • Umístění objektu:
    Okraj
  • Telekomunikace:
    Telefon, Internet
  • Voda:
    dálkový vodovod
  • Elektřina:
    230 V
  • Doprava:
    silnice, dálnice, MHD, autobus, vlak
  • Topeni:
    ústřední plynové
  • Odpad:
    kanalizace
  • Komunikace:
    asfaltová
  • Energetická náročnost:
    D - Méne úsporná
  • Podle vyhlášky:
    c. 78/2013 Sb.
  • Ukazatel náročnosti:
    119 kWh/m2
  • Nabídky v okolí:
  • Informace o obci:
    Obec Plzeň má 168808 obyvatel, z toho 116966 v produktivním věku.
    V obci se nachází pošta.
    V obci se nachází škola, popř. školka.
    V obci se nachází zdravotní zařízení.
    V obci je rozvod kanalizace.
    V obci je rozvod městské vody.
    V obci je rozvod plynu.

Podobné nabídky v okolí

Lokalita: Na Rybníčku , Plzeň, okres Plzeň-město, Česká republika Na Rybníčku, Plzeň, okr. Plzeň-město