• Sledovat cenu
  •  

Zasílání upozornění emailem:

Pronájem bytu 2+kk, 67 m2 - Pastelová, Liberec (již není v nabídce)

Cena: 14 990 Kč/měsíc
Stav:archiv
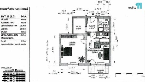
2+kk, 67 m2, skeletová, OV, 6. podlaží
Popis: Nájem 14. 990, - Kč, zálohy na služby 4. 200, - Kč + elektřina 1. 200, - Kč + internetové připojení, kabelová TV.
Kauce 2. Reality 11 Vám zprostředkují pronájem bytu 2+kk,... 67 m², balkón, garáž, ul. Pastelová 1280/11, 460 06 Liberec VI - Rochlice.

Dlouhodobý pronájem bytu 2+kk s balkónem v novostavbě bytového domu v ulici Pastelová v Liberci, v 6. nadzemním podlaží (celkem 7) včetně výtahu, s orientací na JV.

Součástí bytu je komora/sklad se vstupem přímo z bytu (uložení sportovního vybavení, včetně kol atd. ), balkón a parkovací stání v garáži v 1. podzemním podlaží domu s autovýtahem.

Jedná se o pronájem po kolaudaci, nekuřácký, vhodný pro mladý pár, popř. manželské/partnerské bydlení s jedním dítětem.

Vybavení: kuchyňská linka včetně vestavěných spotřebičů (sklokeramický sporák, el. trouba, myčka, mikrovlnka, digestoř, LED osvětlení), v koupelně sprchový kout, zrcadlo s LED osvětlením nad umyvadlem, velká ložnice k vybavení, kde je možno zřídit i pracovní/dětský kout.

Byt obsahuje dostatečné množství zásuvek, včetně síťového připojení k internetové připojeníu 3 krát , kabelové TV, kabelové rozvody, elektrické stahovací venkovní rolety, včetně osvětlení na balkóně se zásuvkou.

Další vybavení, si můžou zrealizovat ke své spokojenosti, dle svých představ uživatelé bytu.

Vytápění ústřední plynové, kotelna přímo v domě.

Vhodný pro: 1 – 3 osoby (nekuřáci, bez větších zvířat)

Cena nájmu: 14 990 Kč

Zálohy na služby, topení, TUV, voda, včetně domovníka, úklidu domu: 4 200 Kč + 1 200 Kč elektřina, + garážové stání, + internetové připojení, kabelová TV

Vratná kauce: 29 000 Kč + provize RK 1 nájem bez služeb.

Bydlení na dobré adrese - nový bytový dům.

Supermarket Albert, Bus MHD, Pošta, Bankomat, Lékárna do 180 m.

Zákl. škola Dobiášova, mat. školka Kytička, sportoviště, tramvaj do 650 m.

K nastěhování 1. 1. 2023

Další podrobnosti Vám ráda sdělím, kdykoliv volejte nebo pište. Ev. číslo: 23828. Energetický štítek: B
  • Vložení inzerátu:
    5.12.2022
  • Kód:
    3404929
  • Typ nemovitosti:
    Byt
  • Typ budovy:
    Skeletová
  • Dispozice:
    2+kk
  • Vlastnictví:
    OV
  • Podlaží:
    6
  • Podlahová plocha:
    67 m2
  • Balkón:
    Ano
  • Sklep:
    Ano
  • Stav objektu:
    Novostavba
  • Energetická náročnost:
    B - Velmi úsporná
  • Nabídky v okolí:
  • Informace o obci:
    Obec Liberec má 101865 obyvatel, z toho 71331 v produktivním věku.
    V obci se nachází pošta.
    V obci se nachází škola, popř. školka.
    V obci se nachází zdravotní zařízení.
    V obci je rozvod kanalizace.
    V obci je rozvod městské vody.
    V obci je rozvod plynu.

Podobné nabídky v okolí

Lokalita: Pastelová , Liberec, okres Liberec, Česká republika Pastelová, Liberec